EasyManua.ls Logo

ermaf P 40 - Connecting the Oil Supply

ermaf P 40
29 pages
Print Icon
To Next Page IconTo Next Page
To Next Page IconTo Next Page
To Previous Page IconTo Previous Page
To Previous Page IconTo Previous Page
Loading...
User manual P 40 - P 120
Issue: 11.14
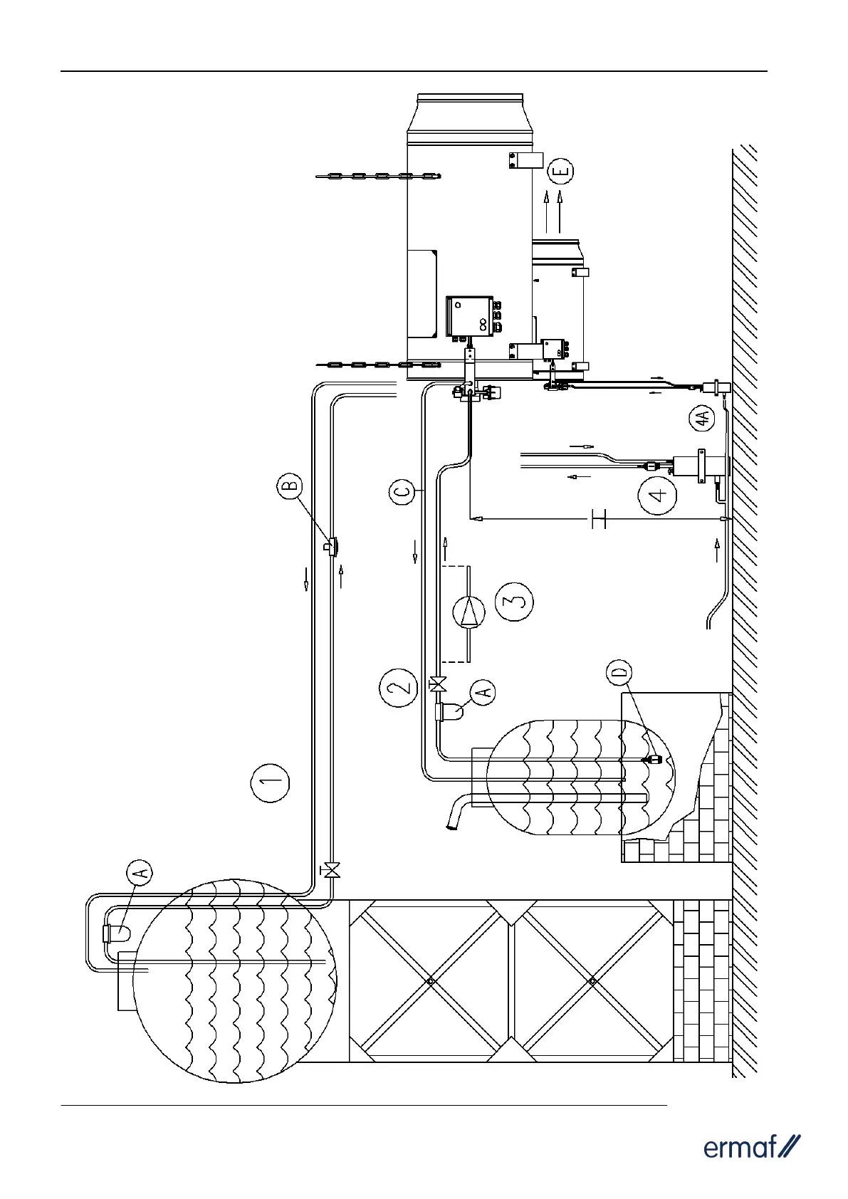
4 Installation Instructions Page 9
4.3. Connecting the oil supply

Related product manuals