EasyManua.ls Logo

ESAB ESP-400C - Page 87

ESAB ESP-400C
120 pages
Print Icon
To Next Page IconTo Next Page
To Next Page IconTo Next Page
To Previous Page IconTo Previous Page
To Previous Page IconTo Previous Page
Loading...
SECTION 6 Troubleshooting
ESP 400C and 600C Plasma Power Sources
6-49
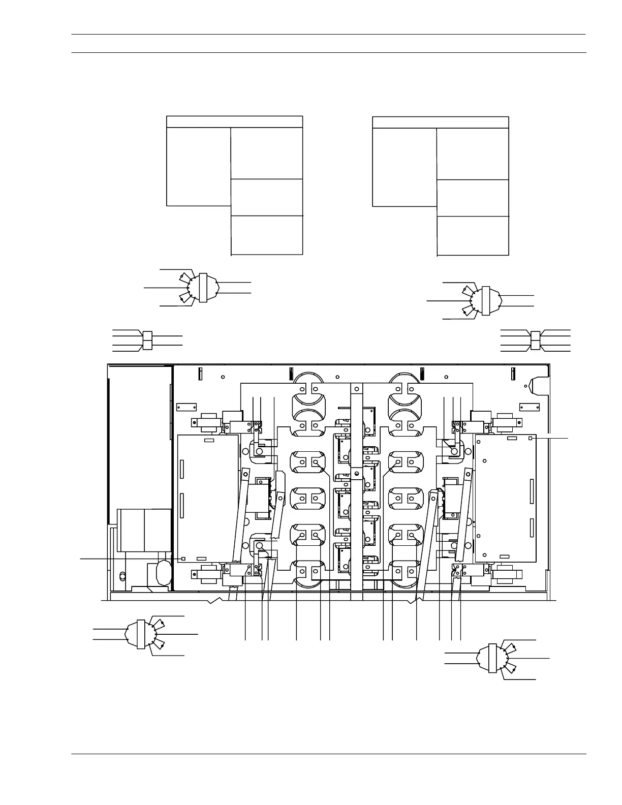
6.8 Wiring Diagrams – 575V 60H
z
Drawing 4 (P/N 35880)
R12-1 BRN
R12-2 ORN
PCB2 P3 BLK
R10-1 YEL
R10-2 BLU
R53-2 WHT
R54-2 WHT
R11-1 BLU
R11-2 YEL
R54-1 VIO
R14-2 ORN
R14-1 BRN
X7
X6
X5
X4
X3
X2
X1
B
L
U
Y
E
L
G
R
N
G
R
Y
H1
H2
T6
PCB2 P6-3 RED
PCB2 P6-2 GRN/YEL
PCB2 P6-1 BRN
TB2-2 WHT
TB2-1 BLK
X7
X6
X5
X4
X3
X2
X1
B
L
U
Y
E
L
G
R
N
G
R
Y
H1
H2
T7
PCB3 P5-2 GRN/YEL
PCB3 P5-1 BRN
TB3-2 WHT
TB3-1 BLK
PCB3 P5-3 RED
C21
T7
D21
2
1
E
C
Q3
P5
C7
C8
+
+
C1
C2
+
+
D19
C19
T6
E
C
Q1
P6
P3
P1
K2
PCB2
C23
1
2
D23
Q1-C BLK
P2
P5
TB2
T5
C20
D20
E
C
R13-1 BRN
R13-2 ORN
R52-1 VIO
C6 +
C5 +
C4 +
C3 +
C9
C10
C12
+
+
+
C11
+
PCB3 P3 BLK
R15-2 ORN
R15-1 BRN
D22
C22
T8
TB3
1
2
E
CQ4
D24
C24
P3
P1
P2
Q4-C BLK
P6
2
1
TB2-1 BLK
TB9-20 BLK
TB2-2 WHT
TB9-15 WHT
T8-H1 BLK
T7-H1 BLK
T8-H2 BLK
T7-H2 WHT
TB3
1
2
T8
H1
H2
X1
X2
X3
X4
X5
X6
X7
TB3-1 BLK
TB3-2 BLK
PCB3 P6-1 BRN
PCB3 P6-2 GRN/YEL
PCB3 P6-3 RED
G
R
Y
G
R
N
Y
E
L
B
L
U
T5
H1
H2
X1
X2
X3
X4
X5
X6
X7
TB2-1 BLK
TB2-2 BLK
PCB2 P5-1 BRN
PCB2 P5-2 GRN/YEL
PCB2 P5-3 RED
G
R
Y
G
R
N
Y
E
L
TB2
T5-H1 BLK
T6-H1 BLK
T5-H2 BLK
T6-H2 WHT
TB3-1 BLK
TB3-2 WHT
1
2
1 PCB1 P10-1 BLK
2 PCB1 P10-2 WHT
3 PCB1 P10-3 GRN
4 PCB1 P10-4 RED
5 PCB1 P10-7 BLU
6 PCB1 P10-8 ORN
7 PCB1 P10-9 YEL
8 PCB1 P10-10 BRN
9 PCB1 P10-5 GRY
10 PCB1 P10-6 VIO
1 PCB2 P2-3 YEL
2 PCB3 P2-2 CLR(TP)
3 PCB2 P2-1 YEL
4 PCB3 P2-4 SHLD
5 PCB3 P2-3 BLK(TP)
6
1 T5-X1 BRN
2 T5-X4 GRN/YEL
3 T5-X7 RED
1 T6-X1 BRN
2 T6-X4 GRN/YEL
3 T6-X7 RED
PCB2
P1
P2
P5
P6
1 PCB1 P11-1 BLK
2 PCB1 P11-2 WHT
3 PCB1 P11-3 GRN
4 PCB1 P11-4 RED
5 PCB1 P11-7 BLU
6 PCB1 P11-8 ORN
7 PCB1 P11-9 YEL
8 PCB1 P11-10 BRN
9 PCB1 P11-5 GRY
10 PCB1 P11-6 VIO
1
2 PCB2 P2-2 CLR(TP)
3 PCB2 P2-5 BLK(TP)
4 PCB2 P2-4 SHLD(TP)
5
6
1 T7-X1 BRN
2 T7-X4 GRN/YEL
3 T7-X7 RED
1 T8-X1 BRN
2 T8-X4 GRN/YEL
3 T8-X7 RED
PCB3
P1
P2
P5
P6
VIEW F-F (WITH BUS BARS)
PCB3
B
L
U
Note: From ESP-400C/600C//575V
Drawing No. 0558002852, sheet 4 of 5
OR

Table of Contents

Related product manuals