EasyManua.ls Logo

ETATRON D.S. HD-PH - Page 22

Default Icon
Print Icon
To Next Page IconTo Next Page
To Next Page IconTo Next Page
To Previous Page IconTo Previous Page
To Previous Page IconTo Previous Page
Loading...
22
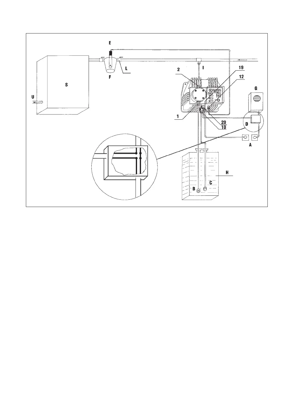
1 Raccordo di aspirazione
2 Raccordo di mandata
10 Connettore sonda di livello
12 Connettore elettrodo
19 Pressacavo di alimentazione
20 Connettore uscita servizi
(vedi 8.3 punto g)
APresa di alimentazione elettrica
BFiltro
C Sonda di livello
D Scatola di derivazione servizi
E Elettrodo
F Portaelettrodo
G Segnalatore di allarme
(ottico/acustico)
H Serbatoio additivo
I Raccordo di iniezione
LValvola di intercettazione
S Serbatoio impianto
T Agitatore
U Scarico
fig.13
HD-PH/P
Esempio di impianto

Table of Contents

Related product manuals