EasyManua.ls Logo

ETATRON D.S. HD-PH - Page 82

Default Icon
Print Icon
To Next Page IconTo Next Page
To Next Page IconTo Next Page
To Previous Page IconTo Previous Page
To Previous Page IconTo Previous Page
Loading...
82
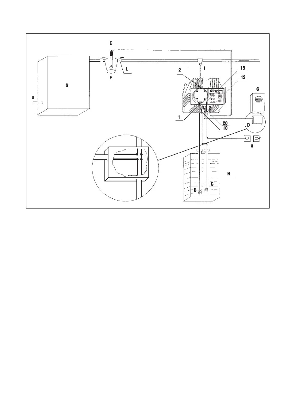
ESP
1 Racor de aspiración
2 Racor de impulsión
10 Conector sonda de nivel
12 Conectador cable electrodo
19 Sujeta cable
20 Conector salida a servicio
A Toma de alimentación eléctrica
B Filtro
C Sonda de nivel
D Caja de derivación a servicio
E Electrodo
F Portaelectrodo
G Señan de alarma (optica/acústica
H Depósito aditivo
I Inyector
L Válvula de retención
S Depósito planta
T Agitador
U Desagüe
fig.13
HD-PH/P
Ejemplo de instalación con HD-PH/P.

Table of Contents

Related product manuals