EasyManua.ls Logo

Europlex Verifier 24 - Control Panel Cabinet

Default Icon
86 pages
Print Icon
To Next Page IconTo Next Page
To Next Page IconTo Next Page
To Previous Page IconTo Previous Page
To Previous Page IconTo Previous Page
Loading...
(
(
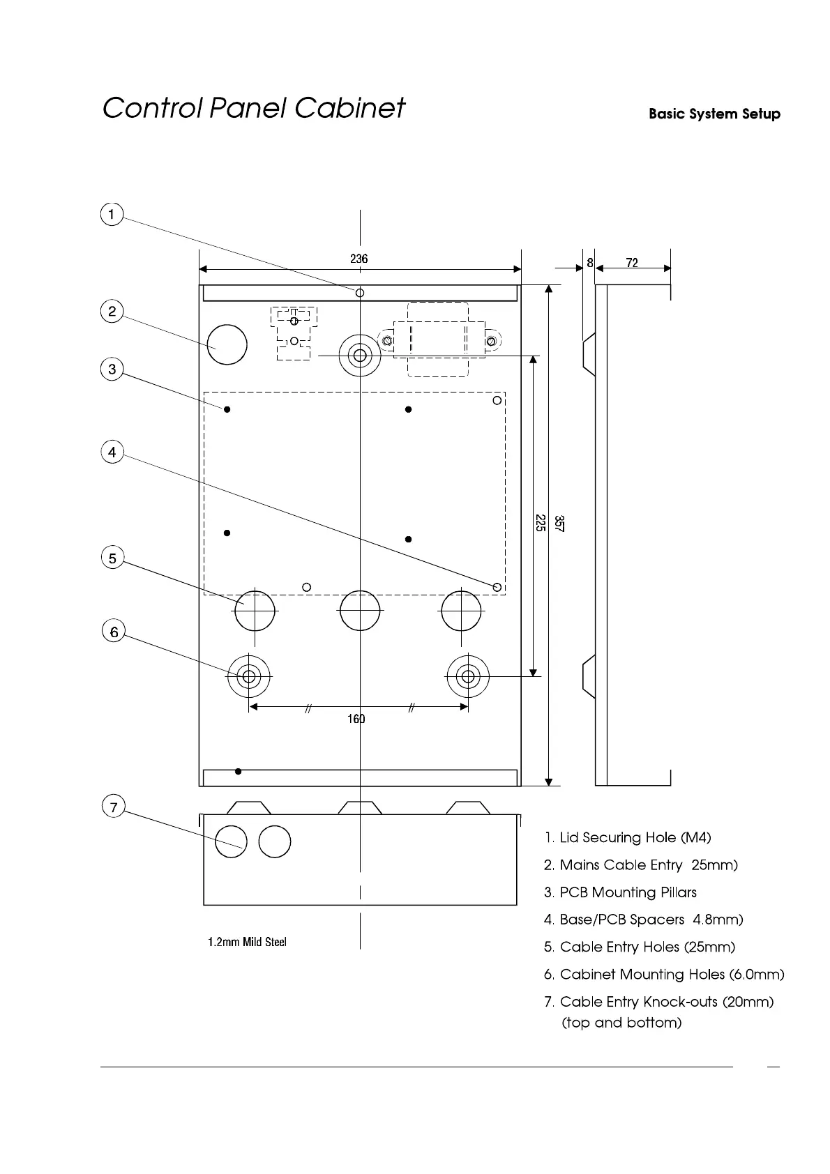
Fig. 3 - Control Panel Cabinet
(Diameter shown)
1-3

Related product manuals