EasyManua.ls Logo

Everwell FCAC Series - Page 23

Everwell FCAC Series
36 pages
Print Icon
To Next Page IconTo Next Page
To Next Page IconTo Next Page
To Previous Page IconTo Previous Page
To Previous Page IconTo Previous Page
Loading...
R410A 60Hz EER 2.36 Series Service Manual
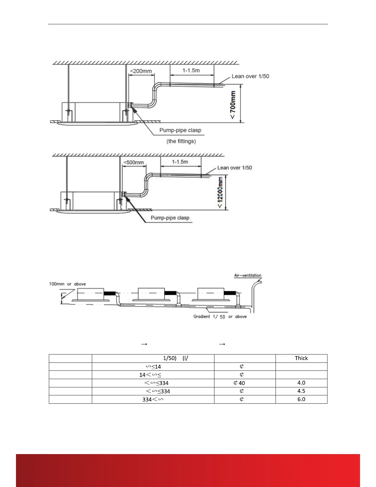
4.3 Upwards drainage (drain pump)
Ceiling cassette (compact)
Ceiling cassee
4.4 Convergent drainage
4.4.1. The number of indoor units should be as small as possible to prevent the traverse main pipe
overlong.
4.4.2. Indoor unit with drain pump and indoor unit without drain pump should be in different drainage
system.
4.4.3. Selecting the diameter
Number of connecting indoor units
Calculate drainage volume Select the diameter
Calculate allowed volume =Total cooling capacity of indoor units(HP)×2 (l/ hr)
Allowed volume(lean hr)
I.D. (mm)
Hard PVC
25
3.0
Hard PVC
88 30
3.5
Hard PVC
88
Hard PVC
175
50
Hard PVC
80
22

Related product manuals