EasyManua.ls Logo

Everwell FCAC Series - Water Drainage

Everwell FCAC Series
36 pages
Print Icon
To Next Page IconTo Next Page
To Next Page IconTo Next Page
To Previous Page IconTo Previous Page
To Previous Page IconTo Previous Page
Loading...
R410A 60Hz EER 2.36 Series Service Manual
4.Water Drainage
4.1 Gradient and Supporng
4.1.1 Keep the drainpipe sloping downwards at a gradient of at least 1/100. Keep the drainpipe as short
as possible and eliminate the air bubble.
4.1.2 The horizontal drainpipe should be short. When the pipe is too long, a prop stand must be installed
to keep the gradient of 1/100 and prevent bending. Refer to the following table for the specification of the
prop stand.
Diameter
Hard PVC pipe
1~1.5m
4.1.3. Precautions
The diameter of drainpipe should meet the drainage requirement at least.
The drainpipe should be heat-insulated to prevent atomization.
Drainpipe should be installed before installing indoor unit. After powering on, there is some water in
water-receiver plate. Please check if the drain pump can operate correctly.
All connection should be firm.
Wipe color on PVC pipe to note connection.
Climbing, horizontal and bending conditions are prohibited.
The dimension of drainpipe can’t less than the connecting dimension of indoor drainpipe.
Heat-insulation should be done well to prevent condensation.
Indoor units with different drainage type can’t share one convergent drainpipe.
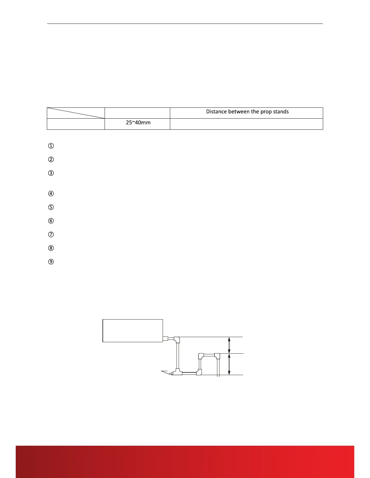
4.2 Drainpipe Trap
4.2.1. If the pressure at the connection of the drainpipe is negative, it needs to design drainpipe trap.
4.2.2. Every indoor unit needs one drainpipe trap.
4.2.3. A plug should be designed to do cleaning.
Plug
5
0
c
m
5
0
c
m
21

Related product manuals