EasyManua.ls Logo

Evolution Aqua evouv evo15 - Page 10

Evolution Aqua evouv evo15
24 pages
Print Icon
To Next Page IconTo Next Page
To Next Page IconTo Next Page
To Previous Page IconTo Previous Page
To Previous Page IconTo Previous Page
Loading...
10
POSITIONING AND MOUNTING THE UV
If you are going to position your evoUV outside or in an area where it is likely to get splashed
regularly with water, then you must mount the unit the correct way up. If your evoUV will be
positioned in a permanently dry environment then it can be installed in any position.
Your evoUV must not be submerged in water or placed in a position where water may collect
around the unit. The electrics within the evoUV units are sealed in a showerproof unit. evoUV
has an IP rating of X5.
Please ensure that there is enough space at one end of the evoUV to enable bulb / quartz
sleeve removal and maintenance.
PLEASE NOTE: Wall mounting screws and wall plugs are not provided.
If installing the unit prior to or without a pond filter, we would recommend the use of a
pre-filter on the water pump to prevent excess solids from being pumped into the unit.
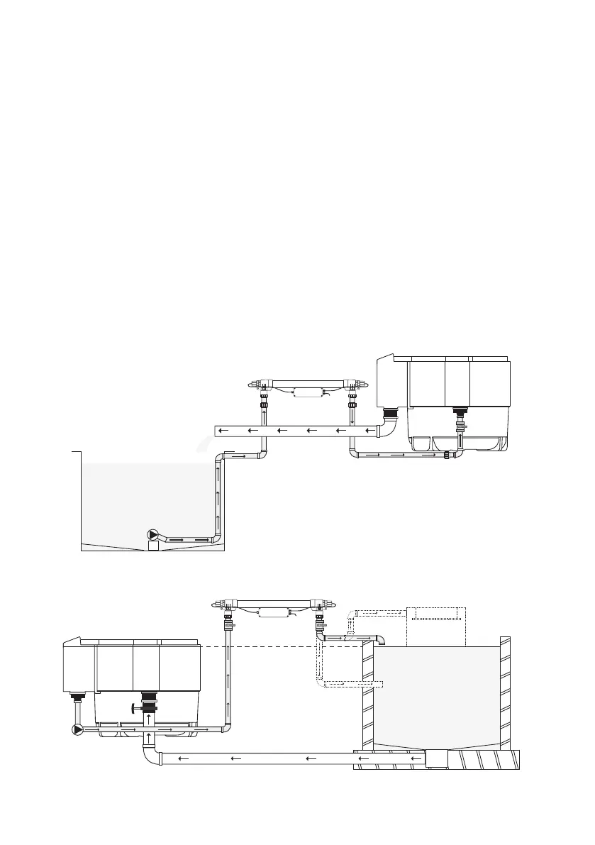
The evoUV may be connected to the water flow on any pumped line, this could be,
for instance, a skimmer line or any other additional pumped line. The two most common
forms of set up are pump fed and gravity fed, shown below:
POND
UV
Pump
Raised 12”
off ground
” or 2” Pipe
” or
2” Pipe
4” Pipe
Return to pond
Gravity Fed Installation
Pump Fed Installation
We recommended installing a ball valve either side of the evoUV for maintenance.
POND
Water Level
Return to pond
UV
Alternative return via waterfall / blade
Alternative
return
Water
Pump
4” Pipe
” or 2” Pipe
Downloaded from http://www.watergardeningdirect.com

Related product manuals