EasyManua.ls Logo

EWM WEGA 351 - Wega Kg, Kw (M2.20;M2.40)

EWM WEGA 351
89 pages
Print Icon
To Next Page IconTo Next Page
To Next Page IconTo Next Page
To Previous Page IconTo Previous Page
To Previous Page IconTo Previous Page
Loading...
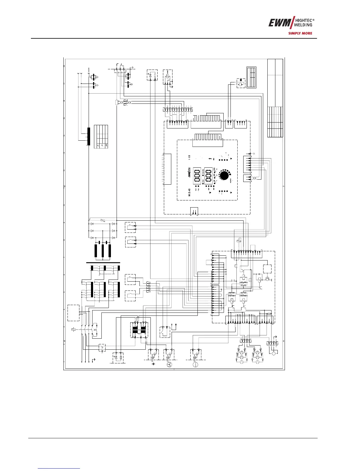
Circuit diagrams
WEGA KG, KW (M2.20/M2.40)
80 Item No.: 099-004934-EWM01
11.2 WEGA KG, KW (M2.20/M2.40)
BT
Zentralanschluß
X6-
1
2
4x2n2F
1
?T
2
?T
3
-
W
PEPE
4x2n2F
X4-
+
-
R1-
+
-
1 2
2
BRT
1
BRT
3
US-
4
42VAC
2
Schütz
1
0VAC
5
20VAC
6
20VAC
K
A
H1-
LED gelb
PE
+
V1-
123
4
Res.
C02
Mix hart
Argon
Mix
3
2
1
Drosselanschlüsse
4
3
2
1
Res
S1-
U V
L2L1
50C°
Gleichrichter
F6-
3 4
90C°
Gleichrichter
F7-
1 2
4
400V
3
230V
1
?T
2
?T
1
230VAC
7
0VAC
10
0VAC
14
230VAC
1
Schütz
2
Schütz
3
Temp. Trafo
4
Temp. Trafo
5
Temp.Gleichrichter
6
Temp. Gleichrichter
7
Temp.Trafo
8
Temp. Trafo
9
Temp. Gleichrichter
10
Temp.Gleichrichter
11
Druckwächter
4
V1+
8
20V
9
0V
L1
L2
L3
T1-
2u2F
2u2F
V1-
~
~
~
-
+
?T?T
?T?T
?T?T
?T?T
Temp.-Trafo Temp.-Trafo
F4- F5-
1 2 3 4
X2-
4
?T
3
Wassergekühlt
1
Druckwächter
7
42VAC
-
V1-
PE
PE3-
1
Motor +/-
2
Motor -/+
M 2 2 0 / 1
A2-
X2/9
X2/8
X2/7
X2/6
X2/5
X2/4
X2/3
X2/2
X2/1
X2/16
X2/15
X2/14
X2/13
X2/12
X2/11
X2/10
X2
X1/2
X1/3
X1/4
X1/1
X1/5
X1/6
X1
X3/2
X3/1
X3
XPE
+15V
X1/16
X1/15
X1/14
X1/13
X1/12
X1/11
X1/10
X1/9
X1/8
X1/7
X1/6
X1/5
X1/4
X1/3
X1/2
X1/1
CS2
CS1
RD1
WR1
+5V
CLK1
0V1
Drehg. A
Drehg. A
(nb)
10V Uref
/OE
NC
NC
X1
0VANG
X5/4
X5/3
X5/2
X5/1
X5/6
X5/5
X5/8
X5/7
X5
+15V
X6/16
X6/15
X6/14
X6/13
X6/12
X6/11
X6/10
X6/9
X6/8
X6/7
X6/6
X6/5
X6/4
X6/3
X6/2
X6/1
CS2
CS1
RD1
WR1
+5V
CLK1
0V1
Drehg. A
Drehg. A
(nb)
10V Uref
/OE
NC
NC
X6
0VANG
X4/2
X4/1
X10/4
X10/3
X10/2
X10/1
X4
X10
X8/2
X8/1
X8
M 2 2 0 / 2
A3-
1
Gas
2
Gas
4
IGR0
5
Iist+
6
Iist-
8
IGR0
1
2
3
4
5
6
7
8
9
10
11
12
A2-X5
Gas
NC
Gas
IGR0
NC
NC
NC
Iist+
Iist-
IGR0
NC
NC
1
2
PE
Y1-
Gas
1
PE2-
PE
S2- S3-
Temp
105°C
8
6
4
2
16
14
15
11
9
T2-
10
2
0V
1
2
4A
F2-
Rückseite
1
?T
2
?T
1
2
4A
F3-
1
2
Gasgekühlt
M
Drahtvorschub
M6-
rt sw
schwarzrot2-Rollen Antrieb
schwarz4-Rollen Antrieb rot
Anschluß 2Rollen/4Rollenantrieb
Stecker X4 X4/2X4/1
1
2
2.5A
F1-
1
?T
2
?T
Frontseite
1
Schütz
1
2
3
4
X3-
bl
sw
gnge
?T
?T
?T
?T
?T
Pumpe
1~
M
M5-
3
PE
18
230VAC
16
0VAC
13
230VAC
6
0VAC
1
42VAC
2
H1-A
6
0VAC
5
0VAC
3
4
Druckwächter
F8-
2
V1-
8
10
K1-
A1
A2
1
Schütz
4
Schütz
7
H1-K
8
10
1
2
3
4
X1-
?T
?T
?T
?T
?T
?T
?T
?T
1~ 1~1~
M1-M4
Lüfter
nur bei 500-600A Anlagen!
M7-M8
Lüfter
1~ 1~1~
L1
L1
Xx-
L2
L2
L3
L3
PE
PE
K1-1
K1-3
K1-5
1
5
34
6
2
1413
K1-
14K1-
1PE-
PE
K1-1
K1-3
A4-
V M 2 / 1
K1-1
14
K1-1
13
14
K1-2
K1-213
5857
15
42V
14
0V
K
A
LED grün
H2-
Frontseite
X5/1
X5/2
X5/3
X5/4
X5/5
X5/6
X5
X5/7
X5/8
X5/9
X5/10
X5/11
X5/12
1
K1
X1
X1/1
X1/2
X1/3
X1/4
X1/5
X1/6
X1/7
X1/8
X1/9
X1/10
X1/11
X1/12
X2
X2/1
X2/2
X2/3
X2/4
X2/5
X2/6
24
0R
K4K2
JP10
K3
+30V
1
4
24
5
3
1
2
JP9
X3/10
X3/11
X3/12
X3/1
X3/2
X3/3
X3/4
X3/5
X3/6
X3/7
X3/8
X3/9
X3
X4/10
X4/11
X4/12
X4/1
X4/2
X4/3
X4/4
X4/5
X4/6
X4/7
X4/8
X4/9
X4
A1-
W K - 5
Zeitstufe
JP11
8
Datum: Name:
gezeichnet:
geprüft:
Freigabe:
14.02.2007
12.11.2007
15.11.2006
NIEDENTHAL
NIEDENTHAL
NIEDENTHAL
Blatt: / 1
This drawing is protected by copyright.
It may not be reproduced or utilised in any way
or communicated or forwarded to third parties
without our express permission!
1
WEGA 351-651 M2.40 K
4242-02
Zeichnungsnummer:
MIG-GERAET, FAHR. GAS./WASS.
Änderung-
Änderung-
Änderung-
Änderung-
01
02
Figure 11-2

Table of Contents

Related product manuals