EasyManua.ls Logo

EWM WEGA 351 - Wega Drive 41 (L) M220;M2.40

EWM WEGA 351
89 pages
Print Icon
To Next Page IconTo Next Page
To Next Page IconTo Next Page
To Previous Page IconTo Previous Page
To Previous Page IconTo Previous Page
Loading...
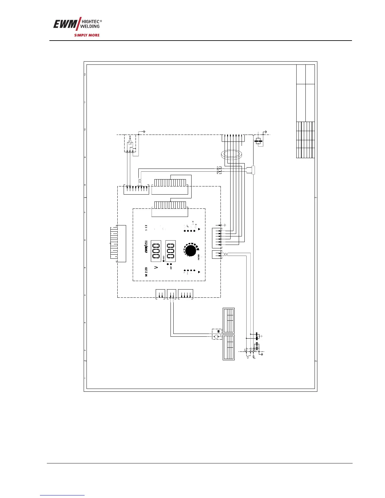
Circuit diagrams
WEGA DRIVE 41 (L) M220/M2.40
Item No.: 099-004934-EWM01 83
11.5 WEGA DRIVE 41 (L) M220/M2.40
4x2n2F
BT
X6-
Zentralanschluß
1
2
1
Motor+
2
Motor-
1
0VAC
2
Schütz
3
US-
4
42VAC
5
18VAC
6
18VAC
42VAC
Schütz
US-
18VAC
18VAC
0VAC
NC
1
2
3
4
5
6
7
X5-
1
Gas
2
Gas
5
Iist+
6
Iist-
X4-
21
?T
?T
?T
?T
1
2
PE
Y1-
Gas
PE_Dyn
PE--4
PE_Dyn
PE2-4
1
BRT
2
BRT
R1-
500A/60mV
2x2n2F
PE-Schlauchpaket
M 2 2 0 / 1
A2-
+10V
FR-DV
GND
+10V
X2/9
X2/8
X2/7
X2/6
X2/5
X2/4
X2/3
X2/2
X2/1
X2/16
X2/15
X2/14
X2/13
X2/12
X2/11
X2/10
X2
X8/2
X8/1
X4/2
X4/1
X10/4
X10/3
X10/2
X10/1
X8
X4
X10
X1/2
X1/3
X1/4
X1/1
X1/5
X1/6
X1
X3/2
X3/1
X3
XPE
X5/4
X5/3
X5/2
X5/1
X5/6
X5/5
X5/8
X5/7
X5
+15V
X6/16
X6/15
X6/14
X6/13
X6/12
X6/11
X6/10
X6/9
X6/8
X6/7
X6/6
X6/5
X6/4
X6/3
X6/2
X6/1
CS2
CS1
RD1
WR1
+5V
CLK1
0V1
Drehg. A
Drehg. A
(nb)
10V Uref
/OE
NC
NC
X6
+15V
X1/16
X1/15
X1/14
X1/13
X1/12
X1/11
X1/10
X1/9
X1/8
X1/7
X1/6
X1/5
X1/4
X1/3
X1/2
X1/1
CS2
CS1
RD1
WR1
+5V
CLK1
0V1
Drehg. A
Drehg. A
(nb)
10V Uref
/OE
NC
NC
X1
M 2 2 0 / 2
A1-
0VANG 0VANG
NC
GND
BRT
BRT
Code
NC
Code DV
Einfädeln
NC
NC
NC
NC
Rückseite
PE_Dyn
+
Frontseite
M
Drahtvorschub
M1-
Ringkern
n=?Wdg.
schwarzrot
2-Rollen Antrieb
schwarz4-Rollen Antrieb rot
WEGADRIVE 41
Stecker X4 X4/2X4/1
rotschwarz
2-Rollen Antrieb
rot4-Rollen Antrieb schwarz
WEGADRIVE 41L
Stecker X4 X4/2X4/1
2
?T
1
PE_Dyn
1
X3-
2
X3-
rt sw
PE_Dyn
Datum: Name:
gezeichnet:
geprüft:
Freigabe:
24.08.2006 NIEDENTHAL
Blatt: / 1
This drawing is protected by copyright.
It may not be reproduced or utilised in any way
or communicated or forwarded to third parties
without our express permission!
1
WEGADRIVE 41/41L M2.20
4326-00
Zeichnungsnummer:
MIG-DV GERAET
Ände rung-
Ände rung-
Ände rung-
Ände rung-
Figure 11-5

Table of Contents

Related product manuals