EasyManua.ls Logo

Extend EXS-303 - Operation Space

Extend EXS-303
54 pages
Print Icon
To Next Page IconTo Next Page
To Next Page IconTo Next Page
To Previous Page IconTo Previous Page
To Previous Page IconTo Previous Page
Loading...
18
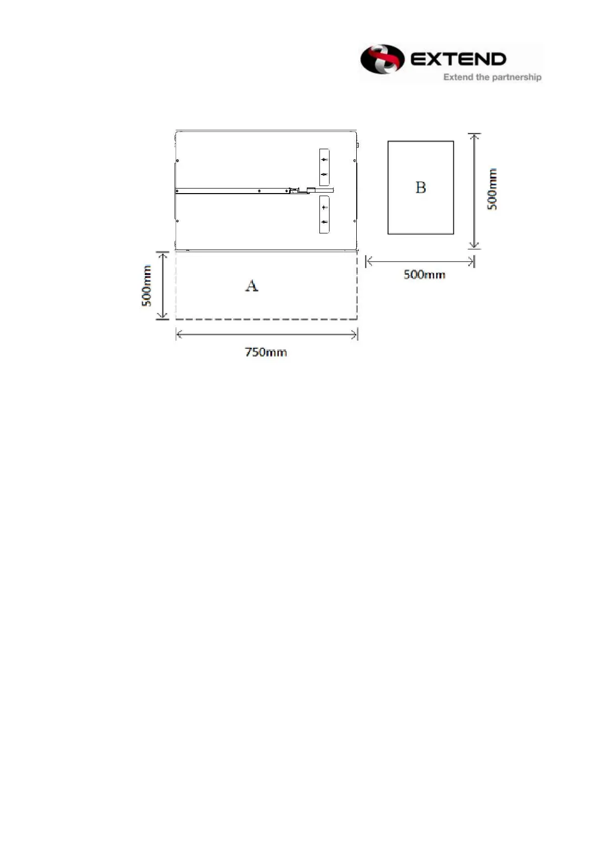
3.3 Operation Space
Keep the area (A) and (B) free for the operator.
The area (A) is necessary for operation strapping machine or changing the strap coil.

Related product manuals