EasyManua.ls Logo

Fagor PS-25B4 - Dimensions

Fagor PS-25B4
386 pages
Print Icon
To Next Page IconTo Next Page
To Next Page IconTo Next Page
To Previous Page IconTo Previous Page
To Previous Page IconTo Previous Page
Loading...
355
11
DDS
HARDWARE
Ref.1310
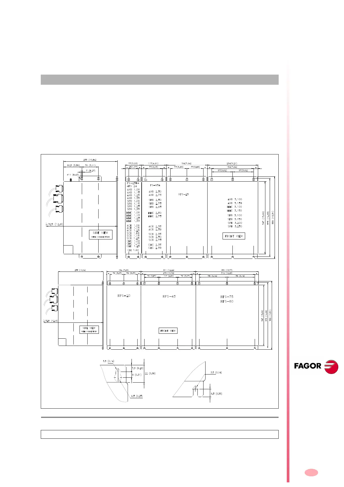
DIMENSIONS
When designing and building the electrical cabinet, it is crucial to consider the necessary space to in-
clude the modules that will make up the DDS system, auxiliary modules and other elements such as
cables and connectors.
11.1 Main modules
F. H11 /1
Dimensions of the main modules.
NOTE. Remember that the upper power connectors may need a height of up to 45 mm.

Related product manuals