EasyManua.ls Logo

Falcon Professional + FXP - Gas Connection; Pressure Testing

Falcon Professional + FXP
43 pages
Print Icon
To Next Page IconTo Next Page
To Next Page IconTo Next Page
To Previous Page IconTo Previous Page
To Previous Page IconTo Previous Page
Loading...
INSTALLATION
Check the appliance is electrically safe and gas sound when you have nished.
28
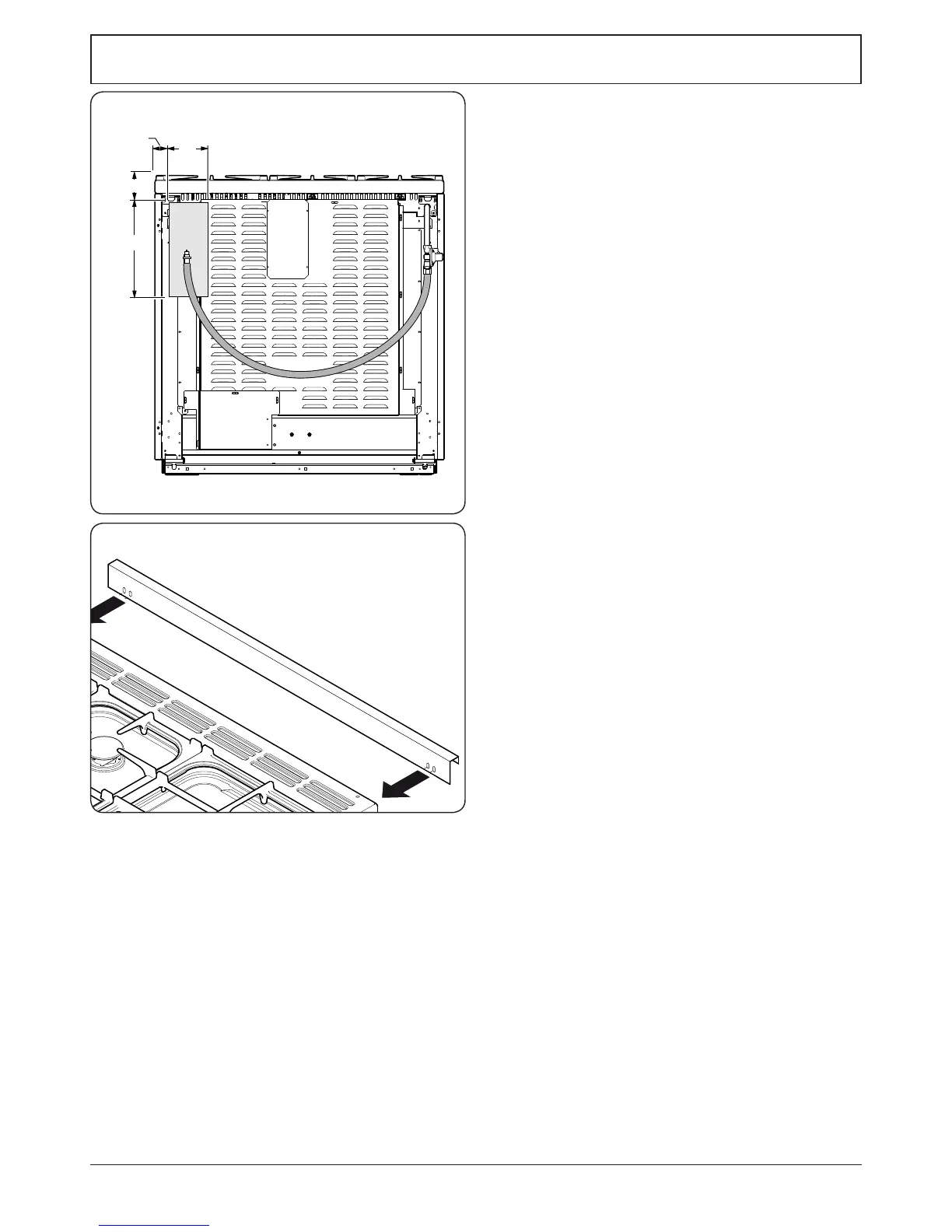
Gas Connection
Must be in accordance with the relevant standards.
The gas supply needs to terminate with a down facing
bayonet.
The inlet connector is located just below the hotplate level at
the rear of the cooker.
Because the height of the cooker can be adjusted and
each connection is dierent it is dicult to give precise
dimensions. Ideally, the house supply connection should be
in the shaded area A.
Means of isolation must be provided at the supply point by
either an approved quick-connect device or a Type 1 manual
shut-o valve.
The hose should be tted so that both inlet and outlet
connections are vertical so that the hose hangs downwards in
a ‘U’ shape (Fig.7-12).
A exible connection is supplied with the cooker. If it is
necessary to use another hose it must be to A.S. 1869 class B
and be suitable for your gas type.
Note: If space behind the cooker is limited, t the spacer
provided to give a greater clearance (Fig.7-13).
If in doubt contact your supplier. Screw connect the threaded
end of the hose into the gas inlet.
After completing the gas connection, check the cooker is gas
sound with a pressure test. When checking for gas leaks do
not use washing up liquid – this can corrode. Use a product
specically manufactured for leak detection.
Natural Gas
The adjustable spring loaded gas pressure regulator is preset
to give a nominal pressure of 1kPa on Natural Gas. Connect
to the Rp½ inlet on the underside of the pressure regulator.
Propane
This cooker is supplied ready for use on natural gas. A
conversion kit for Propane gas is supplied with the cooker –
see the ‘Conversion to Propane Gas section.
Pressure Testing
The pressure test point is accessible on the inlet pipe at the
rear. Remove the test nipple screw and t a pressure gauge to
the test point. Turn on and light two of the hotplate burners.
For Natural Gas cookers the pressure should be 1kPa.
For Propane X cookers the pressure should be 2.54kPa.
ArtAUS.062-0002 - 90SC - Prof+ - Gas connection
40
80
‘A’
330
140
All dimensions in millimetres
Fig.7-12
ArtNo.062-0001 - 90 Prof+ FX - Removing the door
Fig.7-13

Related product manuals