EasyManua.ls Logo

Farfisa Si 5050 - Page 33

Default Icon
64 pages
Print Icon
To Next Page IconTo Next Page
To Next Page IconTo Next Page
To Previous Page IconTo Previous Page
To Previous Page IconTo Previous Page
Loading...
WITHOUT
COAX *
WITH COAX
32
(GB- '99)
VIDEO-INTERCOM SYSTEM WITH AUDIO-VIDEO PRIVACY
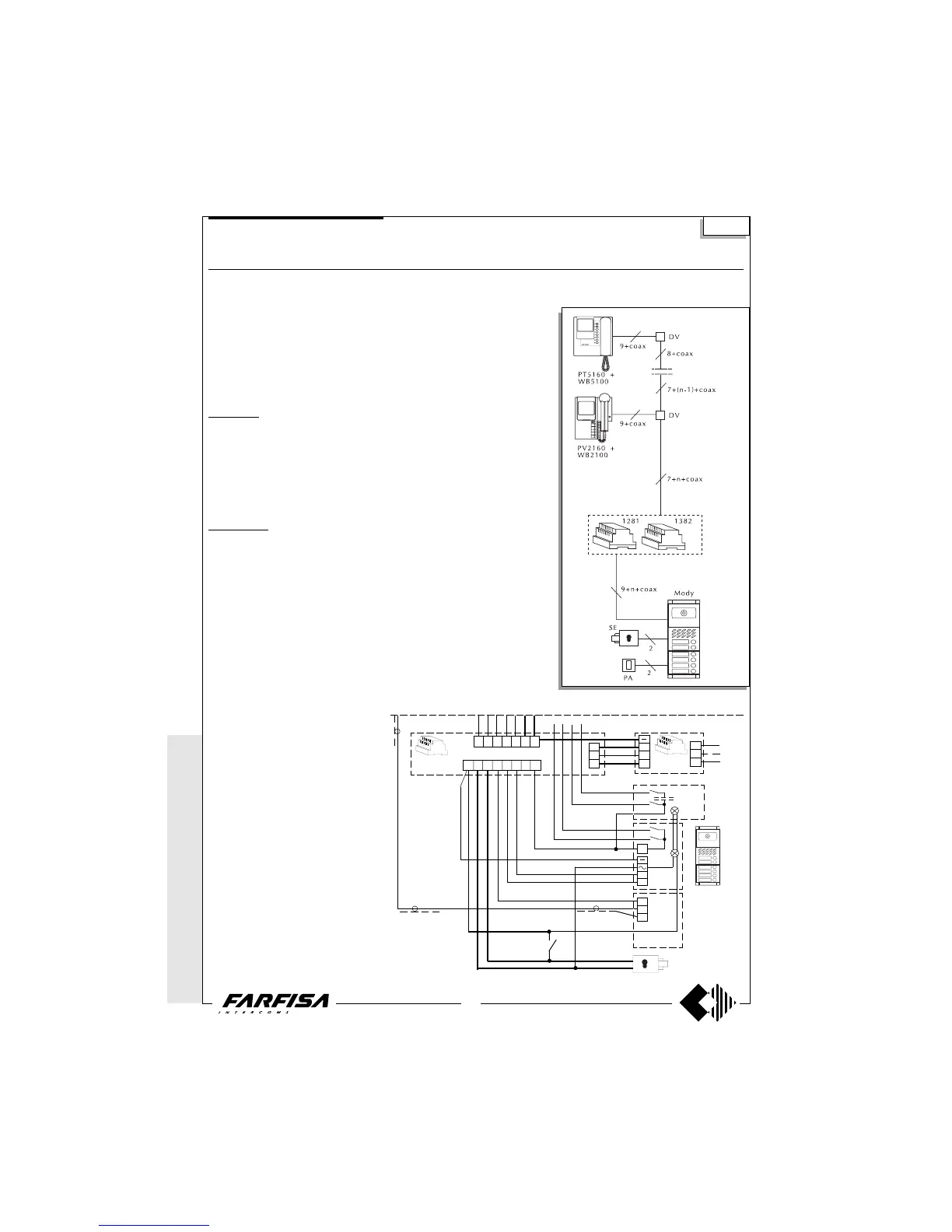
Diagram ref. Q.ty Article Description
VC ... PT 5160 + WB 5100 Monitor FLAT + wall bracket
PT 5660 + WB 5600 + 1283 Monitor + wall bracket + back box
PT 5860 + WB 5600 Monitor reflex + wall bracket
PV 1260 + WB1200 + 1283 Monitor + wall bracket + back box
PV 2160 + WB 2100 Monitor FLAT + wall bracket
DV ... DV2-4 Video floor distributors
AL 1 1281 Stabilized power supply
TR 1 1382 Audio-Video Timer
PA 1 ** Door release button
SE 1 ** Electric door lock (12Vac-1A)
External door station
Mody series (see pages 16, 17, 18, 19 for the composition)
1 row 2 row
UR 1 MD40 MD40 Camera module
PB ... MD72-73-74 MD72-73-74 Module frames and with back box
1 MD10-11-12 MD10-122-124 Modules for electric door speaker
... MD21 ÷ 24 MD222 ÷ 228 Button modules
... MD20 - 50 MD20 - 50 Blank and number modules
1 MD82 ÷ 812 MD82 ÷ 812 Hood covers
1 MD92 ÷ 912* MD92 ÷ 912* Rain shelters
PE 1 MD30 MD30 Electric door speaker
ErreP/R series (see pages 21, 22 for the composition)
UR 1 1385R Camera unit
PB 1 RP... Push-button panel
... R... Push-button panel
1 290R/2 ÷ 290R/38 Rain shelters
PE 1 337C Electric door speaker
... According to the number of users.
* The protective shelters are to be used instead
of back boxes and decorative shields.
** Articles not provided by ACI Farfisa.
Si 5050
Working instructions
See page 28.
Note
- The A and F terminals of article 1382 can be
connected to a maximum of 8 lamps (24V-
3W). If this number is exceeded, one or more
12V transformers and an proper power will be
required (type PRS210).
- If the control switch ON is needed connect
terminal 4 of the timer (dashed line).
- For the cross section of the wires see the
table on page 26.
- To connect the coaxial cable see pages 26
and 27.
For one-way systems or video kits of the
Mody series, connect the coaxial cable di-
rectly to the monitor wall bracket, without
using the DV floor video distributor (see dia-
gram on page 31).
* MODY *
ERREP/R
* PROJECT *
PUNTO
VIRGOLA * S
LIM
One and multi-way systems
H
V
M
2
1
SE
4 9 11 12 13 14 F
230V
127V
FASH123D
Mody
PA
MD100
MD200
0
A
I
+
A
I
+
TR
1382
MD21
MD22
MD23
MD24
AL
1281
N1 N2 N3 Nn
C
MD40
MD72 - 73
Application of MD100 and MD200 modules in one and multiway systems

Related product manuals