EasyManua.ls Logo

Farfisa Si 5050 - Working Instructions

Default Icon
64 pages
Print Icon
To Next Page IconTo Next Page
To Next Page IconTo Next Page
To Previous Page IconTo Previous Page
To Previous Page IconTo Previous Page
Loading...
28
WITHOUT
COAX *
WITH COAX
(GB- '99)
D
3
S
1
2
H
F
A
4
9
11
12
13
14
F
A
I
+
230V
0
127V
+
I
A
AL
VC
10
1
3
1
8
4
9
11
12
13
14
2
75
IA+
0
127V
230V
4
9
11
12
13
14
F
A
I
+
+
I
A
0
127V
230V
AL
0
127V
230V
A + I
H
D
1
2
3
F
A
S
TR
1382
1281
AL
1281
1281
AL
1281
TR
1382
Check that the connections of the system are
carried out correctly.
Put the system in use by connecting the
power supply to the mains.
By pushing a call button from the external
push-button panel, it activates the bell of the
corresponding monitor and it activates the
system for a time of about 50 seconds. The
images appear on the monitor a few seconds
after the call.
Focus the scene to be filmed.
The user called, by lifting the handset, can
speak with the outside and at the same time
increase the activation time of the system
(about 3 minutes). If in the meantime another
call occurs, the monitor shuts itself off and
connects the last call. By replacing the hand-
set the system shuts off automatically.
In case more calls occur simultaneously, a
protection circuit against overloading and
short circuiting is provided to disable the
timer and therefore to shut off the system.
In the absence of calls from the door station,
from any monitor (if provided in the system) it
is possible to control the entrance by press-
ing the
button (control switch ON). Such a
control is not possible with an active system
and when a conversation is taking place. To
work the electric door lock release press the
button from monitor series Project and
PV1260. For the FLAT PV2160 monitor press
the button to the right of the handset. In the
two or more entrance systems all the audio
and video communications and door lock
release, from one entrance to the other, are
automatically switched with the call or the
control switch ON.
In these systems the control switch ON from
the monitors can interrupt a running commu-
nication, for this reason it is advisable to
interrupt, by means of a relay 1471, all the
control switches ON when the video system is
active, giving the priority of the communica-
tion to the door stations (see page 24).
In systems with the intercommunicating serv-
ice, the communication between monitors
and/or intercoms occur with system in stand-
by.
Adjustments
All the regulations are carried out in the
factory. For possible corrections the inter-
vention of a specialized technician is advis-
able. The Contrast and Brightness adjust-
ments, being subject to the environmental
lighting conditions, are accessible from the
under neath by means of a screw driver.
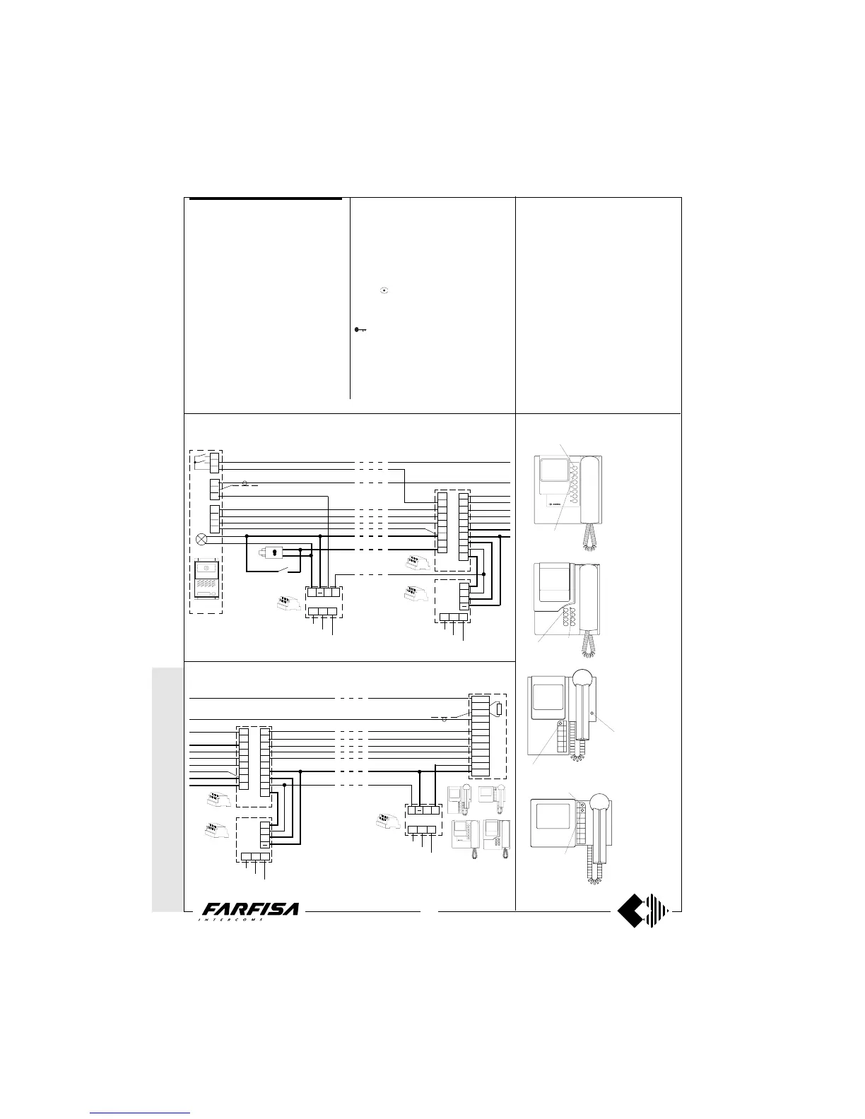
Connection of an additional power supply in systems with long distance
between monitor and the power supply base
PT5160
PT5660
PT5860
PV2160
PV1260
V
M
H
1
2
3
4
PA
SE
Mody
UR
* MODY * E
RREP/R *
PROJECT *
PUNTOVIRGOLA *
SLIM
WORKING INSTRUCTIONS
Connection of an additional power supply in systems with long distance
between the camera unit and the power supply base
Function of monitor main buttons
"door lock release"
"control switch ON"
"control switch ON"
"door lock release"
"control
switch ON"
"door lock
release"
"door lock release"
"control switch ON"

Related product manuals