EasyManua.ls Logo

Farfisa Si 5050 - Page 4

Default Icon
64 pages
Print Icon
To Next Page IconTo Next Page
To Next Page IconTo Next Page
To Previous Page IconTo Previous Page
To Previous Page IconTo Previous Page
Loading...
4
WITHOUT
COAX *
WITH COAX
(GB- '99)
* MODY *
ERREP/R
* PROJECT *
PUNTO
VIRGOLA * S
LIM
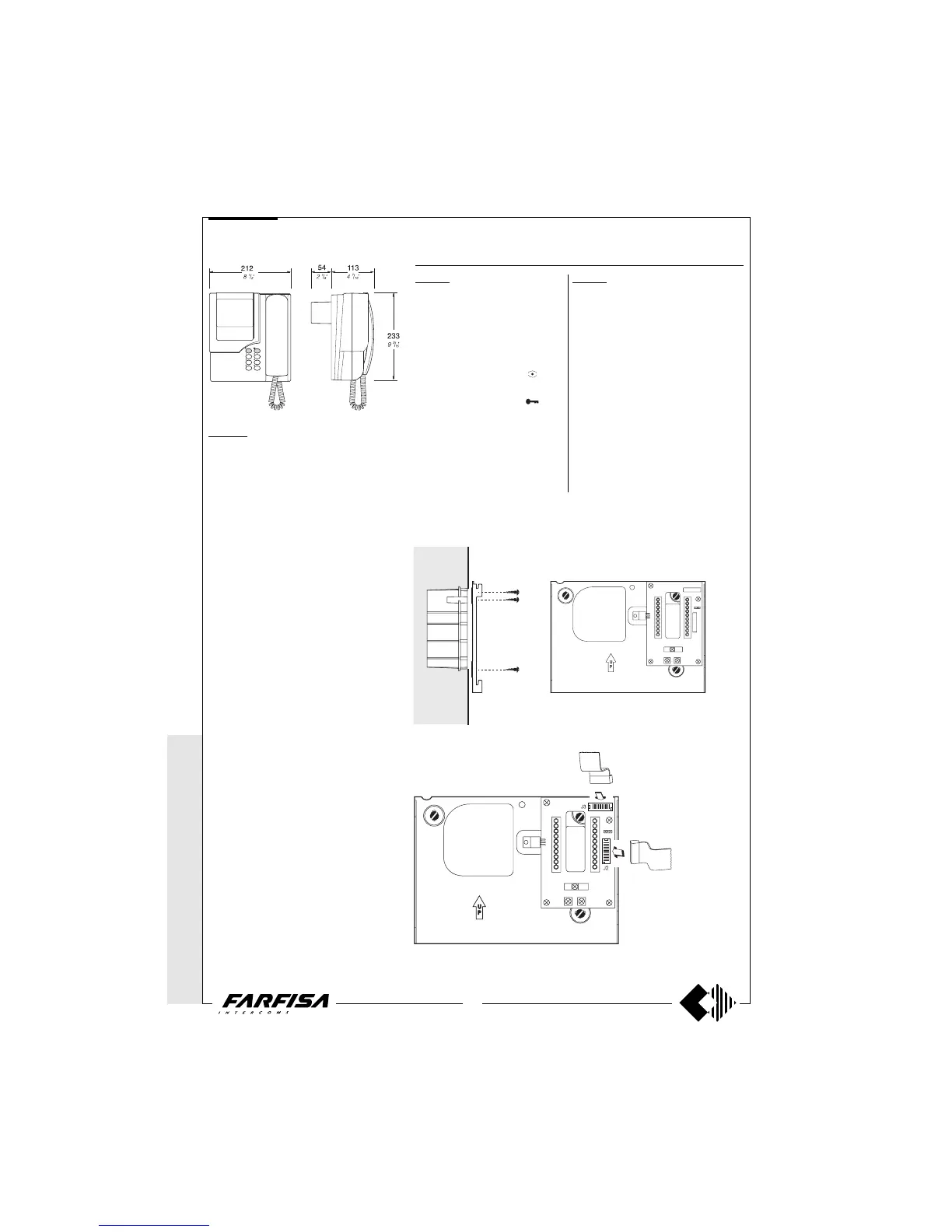
PT5660W. White colour monitor with tradi-
tional cathode tube with audio-video privacy,
electronic microphone, differentiated double
electronic ringing sounds (modulated and
continuous note) and terminal board for the
connection to the wall-bracket. With two but-
tons, one for control switch ON and one for
door lock release, and 6 supplementary but-
tons, that can be added for additional serv-
ices such as: control switch ON, intercommu-
nicating calls, stair lights, door lock release,
etc. The buttons are included in the kit of the
monitor. The maximum acceptable current to
the button terminals is 60mA. For higher
currents use relay unit art.1471.
It can be installed on the wall by using the
wall-bracket art.WB5600 or WB5660 and the
back-box art. 1283. For particular needs it is
possible to separate the common of the but-
tons labeled P4, P5 and P6 by cutting the W1
jumper on the wall-bracket. The buttons have
the 2C terminal in common. In this case the
maximum acceptable current to the three
buttons is 0.5A.
Technical data
Power Supply 18÷24Vdc
Operating current 0.6A
Video tube 4.5" - 90°
Television standard 625 lines
Horizontal frequency 15625Hz
Vertical frequency 50Hz
Bandwidth >5MHz
Video signal on 75 0.8÷1.5Vpp
Starting up time 5÷7 sec.
Operating temperature 0°÷+50°C
Max. permissible humidity 90%RH
Project series
Installation of wall bracket WB5600 or WB5660 to the back box 1283.
Wall-brackets for the PT5660W monitor.
WB5600. The wall bracket includes a
terminal board for connection to the
system, it is to be used when installing
2 - button monitors (control switch-ON
and door lock release), with a one call.
Terminals
1 Video signal input 0.8÷1.5Vpp
2 General ground
3 Video ground
4 Control switch ON - button
8 Positive power supply output for video
floor distributors 12Vdc
9 Door lock release - button
10 Call from the door station (180mA)
11 Audio ground
12 Microphone output
13 Speaker and automatic cancel
14 Positive power supply input 18÷24Vdc
V Not connected
WB5660. The wall bracket includes 2 termi-
nal boards for connection to the system, it is
to be used when installing monitors with extra
buttons and/or 2 differentiated bells.
Located on the wall-bracket terminal board is
a J1 jumper positioned for the intercommuni-
cating service (position A).
By using the PT5660W monitors with multi-
way systems without the intercommunicating
service, the audio privacy can be restored by
positioning the jumper J1 in B.
Terminals
The terminals from 1 to 14 have the same func-
tions and characteristics as the previous model.
V Activation input for digital systems
X1 AC power supply input 13Vac-0.35A
X2 Intercommunicating call input (ground com-
mand)
1C Common for P1, P2 and P3 buttons
2C Common for P4, P5 and P6 buttons
P1÷P6 Service buttons - max 60mA
MONITORS
Plugging in of monitor connectors to the terminal boards of wall bracket.

Related product manuals