EasyManua.ls Logo

FEDCO MSD-200 - Page 42

Default Icon
66 pages
Print Icon
To Next Page IconTo Next Page
To Next Page IconTo Next Page
To Previous Page IconTo Previous Page
To Previous Page IconTo Previous Page
Loading...
MSD
TM
Series
© Copyright 2018 Fluid Equipment Development Company | www.fedco-usa.com
- 42 -
Pump Assembly Continued
Figure 78 - Remove Motor Coupling Hub
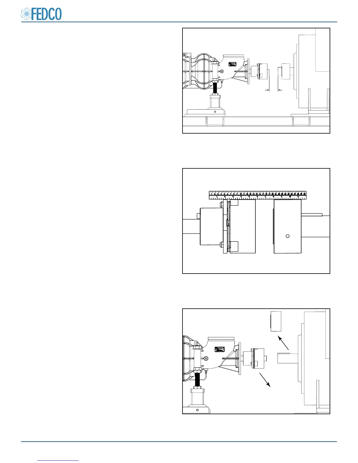
7. Remove the coupling hubs and prepare for
dial indication.
Figure 77 - Align Pump and Motor Shafts
5. Create gap between coupling hubs for pre-
alignment procedure.
6. Using a straight edge, align pump and motor
shafts.
NOTES: If necessary refer to Initial Pump
Alignment to make adjustments.
Figure 76 - Install Dropout Coupling On Motor
Shaft
3. Fit the coupling hubs over the pump and mo-
tor shafts.
4. Set distance between pump and motor
shafts.
NOTES: If this distance is unknown or if you
did not purchase a baseplate through FEDCO
please refer to the Start-Up Record section in
the back of this manual or contact FEDCO for
more information.

Table of Contents

Related product manuals