EasyManua.ls Logo

Fermax 8036 - E1.3 Privacy Telephones 4+N Installation

Fermax 8036
64 pages
Print Icon
To Next Page IconTo Next Page
To Next Page IconTo Next Page
To Previous Page IconTo Previous Page
To Previous Page IconTo Previous Page
Loading...
Pag. 23
Technical
BASIC FUNCTION
Pushing a button on the outdoor panel causes the call signal
Cp1, generated in the amplifier, to be sent along the call
line to the corresponding telephone, which produces the
typical tremolo call tone.
The Secret Module ensures that only the telephone that
has been called has access to the audio channel.
Upon picking up the receiver, a switch connects the
telephone to the common audio cables (2 & 6), thus
establishing communication with the outdoor panel.
Upon pushing the door release button on the telephone,
this connects the wires 1 & 3 of the installation, which
causes the amplifier to activate the door release.
OBSERVATIONS
A Secret Module is needed, which is installed in the outdoor
panel.
It is very important that the connection cables from this
module to the amplifier are as short as possible so as to
avoid problems with noise.
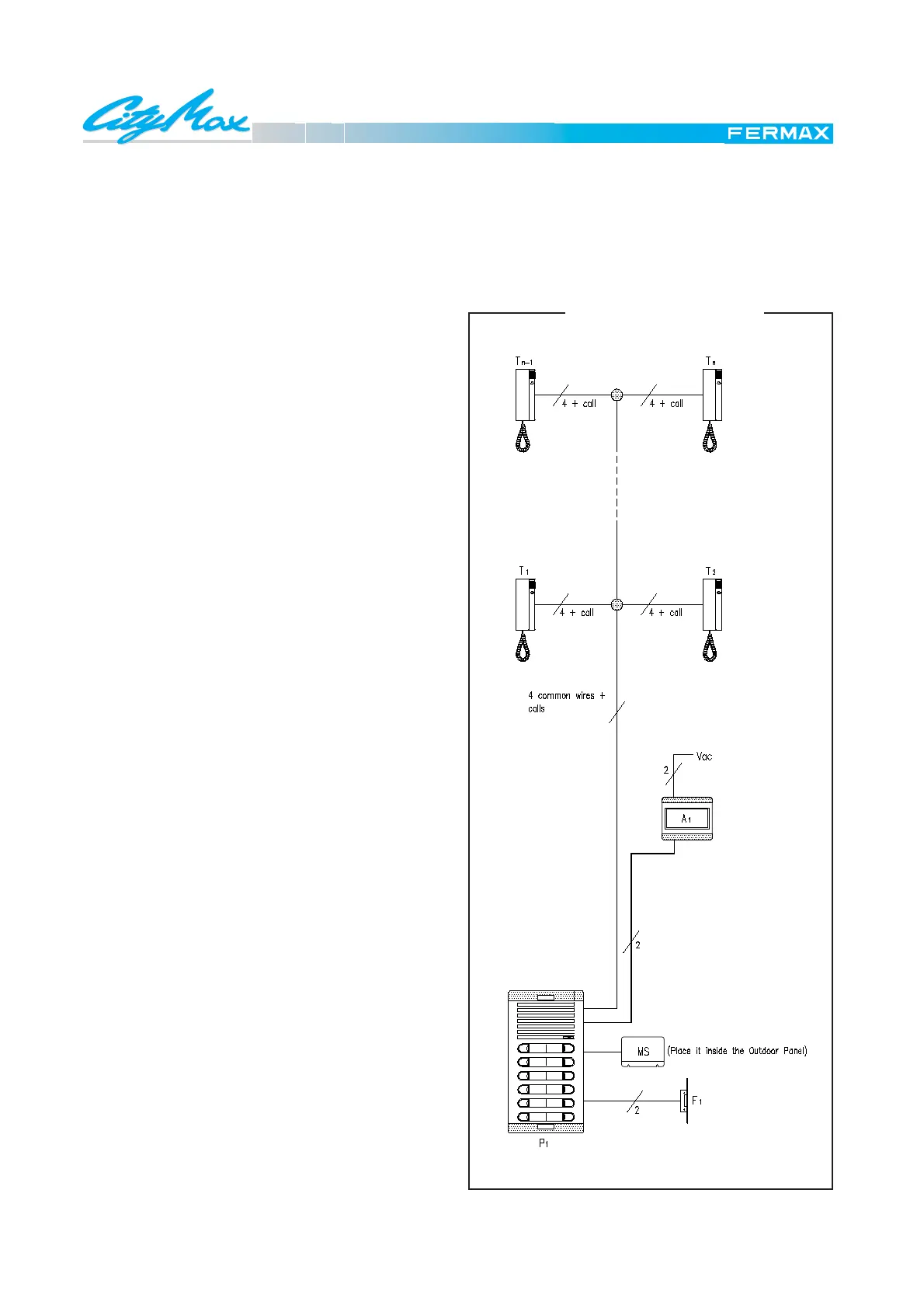
General diagram for Door Phone installations with secret communication in buildings with one entrance.
The telephones will only be able to communicate with the outdoor panel if they have been previously called.
This prohibits calls to other telephones being heard by lifting up the receiver and also helps avoid acoustic
problems if any telephone has been accidentally left off the hook.
DIAGRAM SCHEMATIC
MATERIAL NEEDED
In the dwellings
T1, T2, ...Tn Citymax Privacy Telephones Ref.: 8043
In the communal interior area
A1 Audio Power Supply Ref.: 8787
In the street
P1 Outdoor panels
Neccessary combination
MS Secret Module Ref.: 8042
F1 Electric lock Ref.: 2911
For other types consult catalogue
E 1.3 DOOR PHONE SYSTEM
INSTALLATION WITH PRIVACY TELEPHONES 4+N

Related product manuals