EasyManua.ls Logo

Fermax 8036 - Opening the Hall Door from Inside; Opening a Second Door

Fermax 8036
64 pages
Print Icon
To Next Page IconTo Next Page
To Next Page IconTo Next Page
To Previous Page IconTo Previous Page
To Previous Page IconTo Previous Page
Loading...
Pag. 62
Technical
Opening the hall door from inside
USE
When the hall door has no handle to open it from inside an electronic device is neccessary to activate the door release.
MATERIAL NEEDED
No electronic device as such is needed, only a switch
tough enough to support the hard wear it will probably be
subjected to.
OBSERVATIONS
It is neccessary to install the switch near to the door so
as you can open the door whilst pressing the switch (the
time in which the door release is unblocked). If this is not
possible then it will be neccessary to install a different
type of door release Ref. 2909 which stays unblocked
once activated until the door is opened.
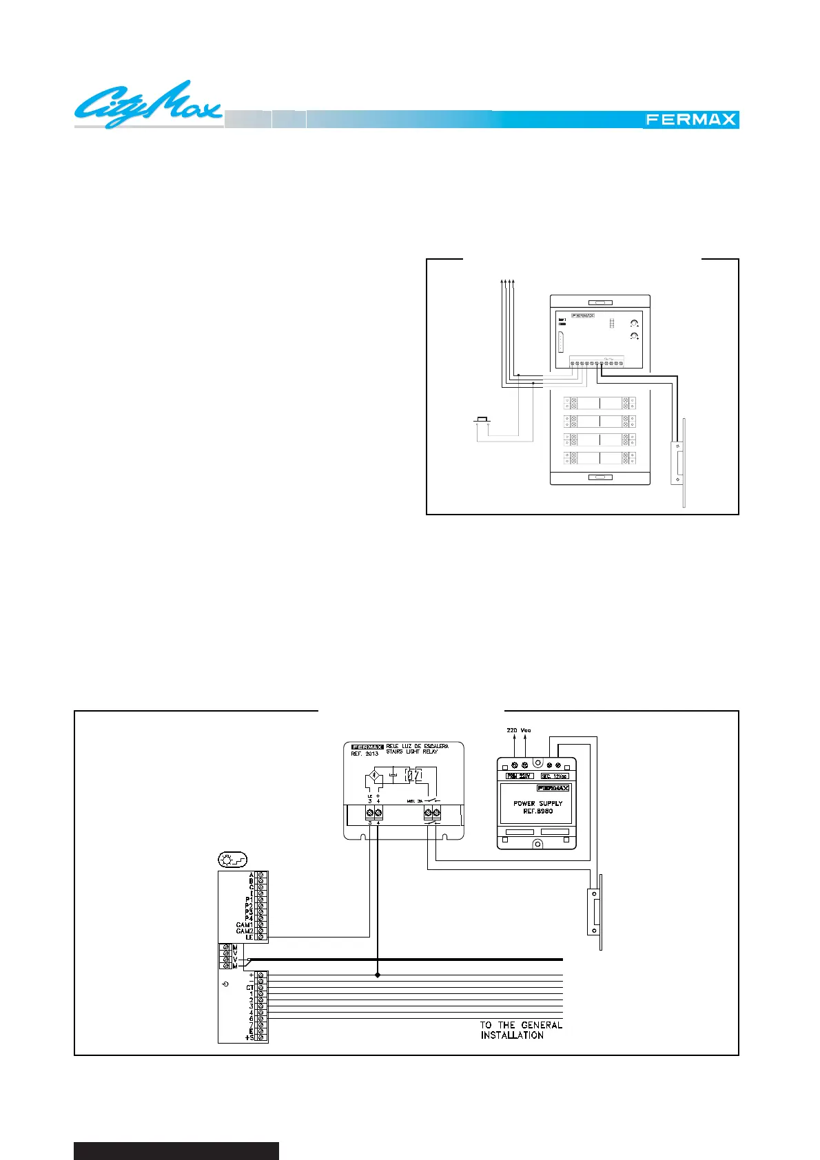
Opening a second door
USE
When it is neccessary to have control over a second door where there is, for example, an iron gate in front of or
behind the main hall door.
MATERIAL NEEDED
Relay Ref. 2013. The monitor or telephone has to be provided with an additional button for this purpose.
TO OPEN THE DOOR FROM INSIDE
OPENING A SECOND DOOR
COMPLEMENTARY INSTALLATIONS
2
n-1
1
n
INT.
EXT.
CN1
1
3
PT2
PT1
2
1
UF
3
2
6
Ab
Cp2
Ab
Cp1
Tc
DEUTSCH
ESPA¥OL
ENGLISH
FRANAIS
PUSHBUTTON
TO THE GENERAL
INSTALLATION

Related product manuals