EasyManua.ls Logo

Fermax 8036 - E2.2 Privacy Monitors 5+N Installation

Fermax 8036
64 pages
Print Icon
To Next Page IconTo Next Page
To Next Page IconTo Next Page
To Previous Page IconTo Previous Page
To Previous Page IconTo Previous Page
Loading...
Pag. 43
Technical
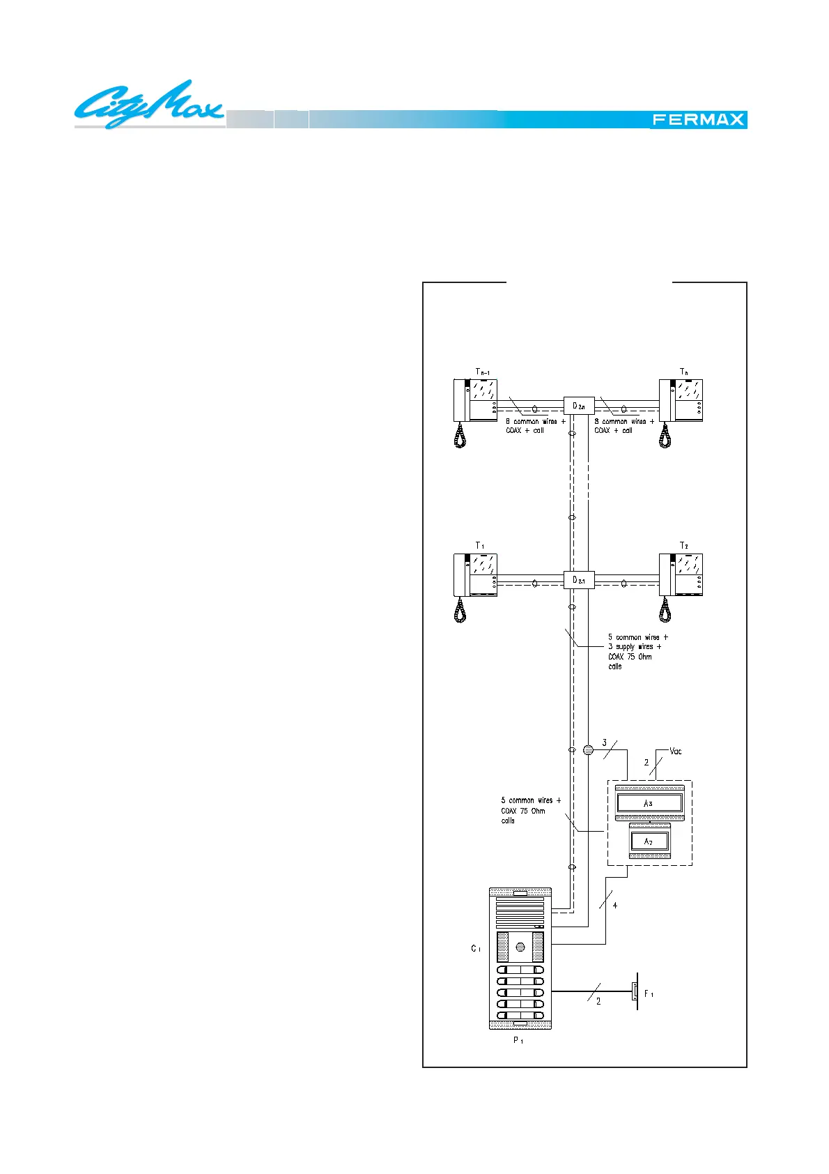
General diagram for video door phone installations with secret communication in buildings with one entrance.
The monitors can only communicate with the outdoor panel if they have been previously called. This avoids
conversations with the street being overheard by other monitors and also avoids acoustic problems if a
telephone has been accidentally left off the hook.
SCHEMATIC DIAGRAM
BASIC FUNCTION
Pressing a determined button on the outdoor panel causes
the call signal Cp1, generated in the amplifier, to be sent
along the call wire to the corresponding monitor, which will
produce the typical tremolo call tone. At the same time it
will enable the telephone audio circuits and will switch on
the screen showing the image captured by the telecamera.
The monitors that have not been called will have their audio
circuits disabled, although they will be able to see the
telecamera image by pressing the on button.
Upon picking up the handset, a switch connects the
telephone to the common audio cables (2 & 6), thus
establishing communication with the outdoor panel.
Pressing the door release button on the monitor unites the
wires 1 & 3 of the installation, which causes the amplifier to
activate the door release.
A 12 Vdc supply and an additional common wire are
neccessary. See diagram.
REMEMBER THAT
The connectors Ref. 8033 are supplied seperately from
the monitor.
A telecamera must be installed Ref. 8028 so a panel with
a window has to be selected.
The 75 ohm charge resistor has to be cut out in all the
video distributors except the last one. See wiring diagram.
MATERIAL NEEDED
In the dwellings and on the floors
M1, M2, ...Mn Citymax Privacy Monitor Ref.: 8026
D2.1, ...,D2.n Video Distributor Ref.: 2448
A distribution of two monitors per floor is assumed
In the communal interior area
A7 Distributor Power Supply Ref.: 88231
A3 Video Power Supply Ref.: 88302
One Video Power Supply for each 60 monitors.
In the street
P1 Outdoor Panels
Neccesary combiantion.
Do not forget the telecamera Ref.: 8028.
F1 Electric lock Ref.: 2911
For other types consult catalogue.
E 2.2 VIDEO PHONE SYSTEM
INSTALLATION WITH PRIVACY MONITORS 5 + N

Related product manuals