EasyManua.ls Logo

Fermax 8036 - Page 44

Fermax 8036
64 pages
Print Icon
To Next Page IconTo Next Page
To Next Page IconTo Next Page
To Previous Page IconTo Previous Page
To Previous Page IconTo Previous Page
Loading...
Pag. 44
Technical
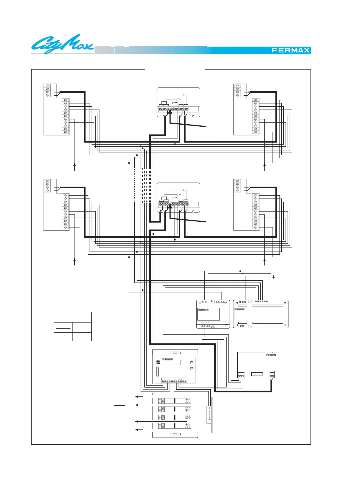
WIRING DIAGRAM
E 2.2 VIDEO PHONE SYSTEM
INSTALLATION WITH PRIVACY MONITORS 5 + N
F
1
1
P
1
M
2
M
n-1
M M
n
A
3
C
1
D
2.1
D
2.n
A
7
FE
-+-+-+
Vac
12
n-1 n
MVCT-+
PRIM SEC. 18Vdc220V
+ +- -
PRIM
REF.2448
2 OUTPUTS VIDEO DISTRIBUTOR
M
R1
+18
75
MV
6
3
+
4
2
VMV
15
V M
MM
V
34
VMMVV
+18
R1
75
2 OUTPUTS VIDEO DISTRIBUTOR
REF.2448
1 5 2
+
6
4
6
7
E
+S
-
CT
1
2
3
M
V
V
M
+
3
+S
E
7
6
4
CT
2
1
+
-
M
V
V
M
4
6
7
E
+S
-
CT
1
2
3
M
V
V
M
+
4
6
7
E
+S
-
CT
1
2
3
M
V
V
M
+
DISTRIBUIDOR VIDEO 2 SALIDAS
DISTRIBUIDOR VIDEO 2 SALIDAS
CONECTOR TEST
DE PRUEBA
CN1
1
2
3
UF
6
1
2
3
PT2
PT1
Ab
Cp2
Ab
Tc
Cp1
INT.
EXT.
Call
Call
To the call
terminal (4)
of each
telephone.
UNIVERSAL
AMPLIFIER
Call
Call
SECTION TABLE
Distances
up to 300 meters
0.5 mm
1 mm
2
2
DON'T CUT RESISTOR
CUT RESISTOR
Calls

Related product manuals