EasyManua.ls Logo

Fermax 8036 - Page 40

Fermax 8036
64 pages
Print Icon
To Next Page IconTo Next Page
To Next Page IconTo Next Page
To Previous Page IconTo Previous Page
To Previous Page IconTo Previous Page
Loading...
Pag. 40
Technical
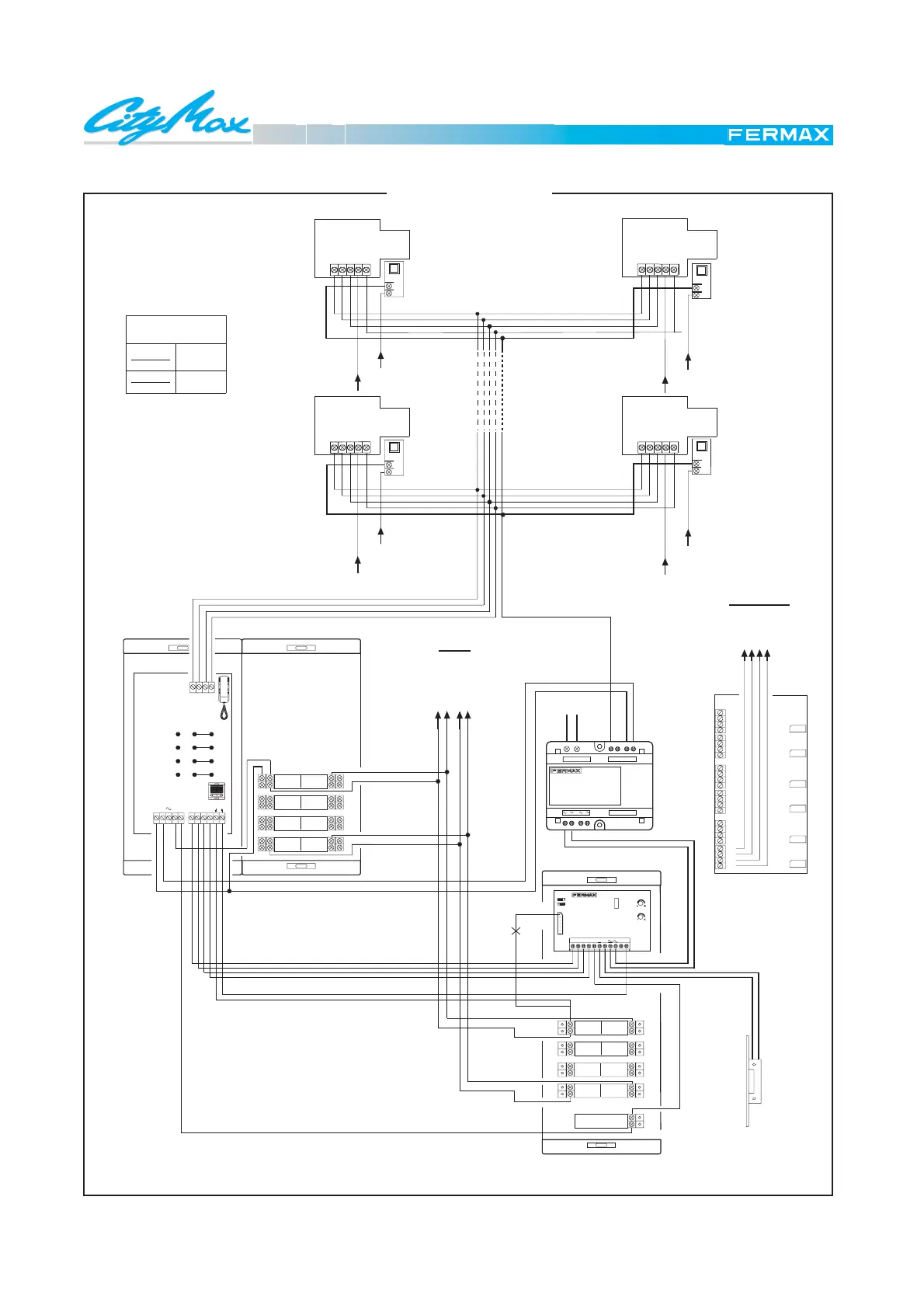
WIRING DIAGRAM
E 1.9 DOOR PHONE SYSTEM
CITYCOM III. FEATURING RETENTION LINE
1
T
2
T
n-1
TT
n
CC
1
P
B1
P
1
F
1
A
7
CN8
CN7
CN6
CN5
312
12
nn-1
21
nn-1
E7
E3
E2
E1
E4
E6
E5
E9
E8
E12
E11
E10
E18
E16
E15
E14
E13
E17
E20
E19
E21
E22
E23
E24
S4-S1
S16-S13
S8-S5
S12-S9
S20-S17
S24-S21
P
P
1
P
234
P
664321
63214
64321
NR-1936
-+
6
4CCp
213
CpCp
2136
NR-1920
Vac
-
-
-
-
+- -+
PRIM
CN1
1
2
3
UF
6
1
2
3
PT2
PT1
Ab
Cp2
Ab
Tc
Cp1
INT.
EXT.
Call
Call
To the call
terminal (4)
of each
telephone.
UNIVERSAL
AMPLIFIER
Call
Call
SECTION TABLE
Distances
up to 300 meters
0.5 mm
1 mm
2
2
cut
Indication
Indication
Indication
Indication
Calls
Indication
To terminal P of each
telephone

Related product manuals