EasyManua.ls Logo

Fermax iloft - DC Electric Lock Connection

Fermax iloft
Print Icon
To Next Page IconTo Next Page
To Next Page IconTo Next Page
To Previous Page IconTo Previous Page
To Previous Page IconTo Previous Page
Loading...
Pag 16
Kit Halo & iLoftKit Halo & iLoft
Kit Halo & iLoftKit Halo & iLoft
Kit Halo & iLoft
Kit Halo & iLoftKit Halo & iLoft
Kit Halo & iLoftKit Halo & iLoft
Kit Halo & iLoft
+
-
L
COAX
Vac
100-240V
INPUT
100-240V ; 0,5 A
50-60 Hz
~
~
~
OUTPUT
18 V ; 1,5 A
ALIMENTADOR
POWER SUPPLY
ALIMENTATEUR
NETZGERÄT
ON
OVERLOAD
ALT CAM
MIC
M
V
L
S
A
B
D
C
VÍDEO COMPUESTO
COMPOSED VIDEO
1 Vpp. 75
CCIR 50 Hz
IDIOMA
LANGUAGE
SENSOR TEMP.
SP
-
BS
NC
+12
Sa
Sb
NA
C
-
+
18Vdc
12 Vdc
18 Vdc
Temperature
sensor
Voice synthesis
A- Español
B- Francais
C- English
D- Deutsch
-
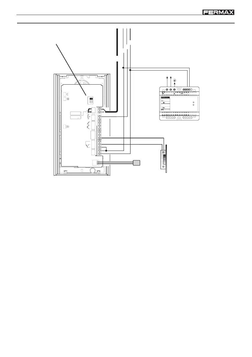
DC electriclock connection

Other manuals for Fermax iloft

Related product manuals