EasyManua.ls Logo

Ferroli DIVA C24 - Page 55

Ferroli DIVA C24
68 pages
Print Icon
To Next Page IconTo Next Page
To Next Page IconTo Next Page
To Previous Page IconTo Previous Page
To Previous Page IconTo Previous Page
Loading...
DIVA C24 / C28 / C32
55
TR
cod. 3541E032 - Rev. 00 - 02/2014
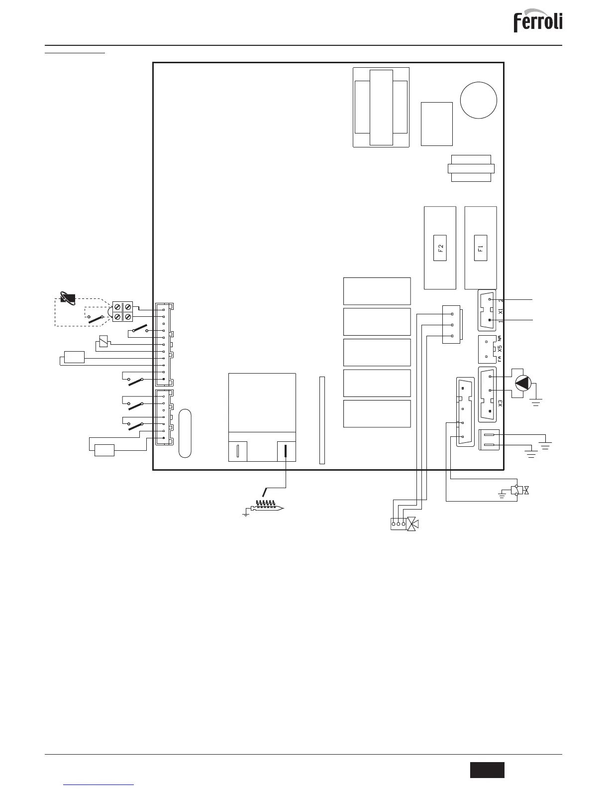
5.6 Elektrik úemasÕ
úek. 21 - Elektrik úemasÕ
A
Dikkat: Ortam termostatÕnÕ veya uzaktan krono-kumandayÕ ba÷lamadan
önce terminal blo÷undaki köprüyü çÕkarÕnÕz.
32 IsÕtma sirkülatörü
34 IsÕtma sÕcaklÕ÷Õ sensörü
38 AkÕú sivici
42 SÕhhi su sÕcaklÕk sensörü
44 Gaz valfÕ
47 Modureg
49 Emniyet termostatÕ
72 Ortam termostatÕ (opsiyonel)
81 Ateúleme ve tespit elektrotu
95 SaptÕrÕcÕ valf
114 Su presostatÕ
126 Duman termostatÕ
139 Uzaktan krono-kumanda (opsiyonel)
X4
1
2
3
4
5
6
7
114
42
47
38
72
T.
L
N
230V
50 Hz
1
3
2
32
X7
1
44
81
1
2
3
4
5
6
7
8
9
10
11
X2
DBM32
PT1
PT2
49
126
34
T.
PR08205
3.15A 250Vac
2
3
4
139
1 2 3
95

Related product manuals