EasyManua.ls Logo

Ferroli DIVA C24 - Page 61

Ferroli DIVA C24
68 pages
Print Icon
To Next Page IconTo Next Page
To Next Page IconTo Next Page
To Previous Page IconTo Previous Page
To Previous Page IconTo Previous Page
Loading...
DIVA C24 / C28 / C32
61
RU
cod. 3541E032 - Rev. 00 - 02/2014
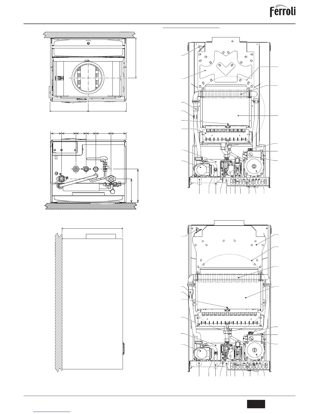
ȼɢɞ ɫɜɟɪɯɭ Ɇɨɞɟɥɶ DIVA C28 ɢ DIVA C32 (ɪɢɫ.14)
ɪɢɫ.14 - ȼɢɞ ɫɜɟɪɯɭ
ȼɢɞ ɫɧɢɡɭ (ɪɢɫ. 15)
ɪɢɫ.15 - ȼɢɞ ɫɧɢɡɭ
ȼɢɞ ɫɛɨɤɭ (ɪɢɫ.16)
ɪɢɫ.16 - ȼɢɞ ɫɛɨɤɭ
5.2 Ɉɛɳɢɣ ɜɢɞ ɢ ɨɫɧɨɜɧɵɟ ɭɡɥɵ
Ɉɛɳɢɣ ɜɢɞ Ɇɨɞɟɥɶ DIVA C24 (ɪɢɫ.17)
ɪɢɫ.17 - Ɉɛɳɢɣ ɜɢɞ
Ɉɛɳɢɣ ɜɢɞ Ɇɨɞɟɥɶ DIVA C28 ɢ DIVA C32 (ɪɢɫ.18)
ɪɢɫ.18 - Ɉɛɳɢɣ ɜɢɞ
200 200
208
330
44 32
114
36
14
19
27
81
95
49
42 38
37
10 8 7 9 11
194
39 74
22
126
78
56
34
44 32
114
36
14
27
78
56
126
81
95
49
42 38
37
10 8 7 9 11
194
39 74
22
34
19

Related product manuals