EasyManua.ls Logo

Ferroli GN 3 - Page 8

Ferroli GN 3
28 pages
Print Icon
To Next Page IconTo Next Page
To Next Page IconTo Next Page
To Previous Page IconTo Previous Page
To Previous Page IconTo Previous Page
Loading...
8
GN3
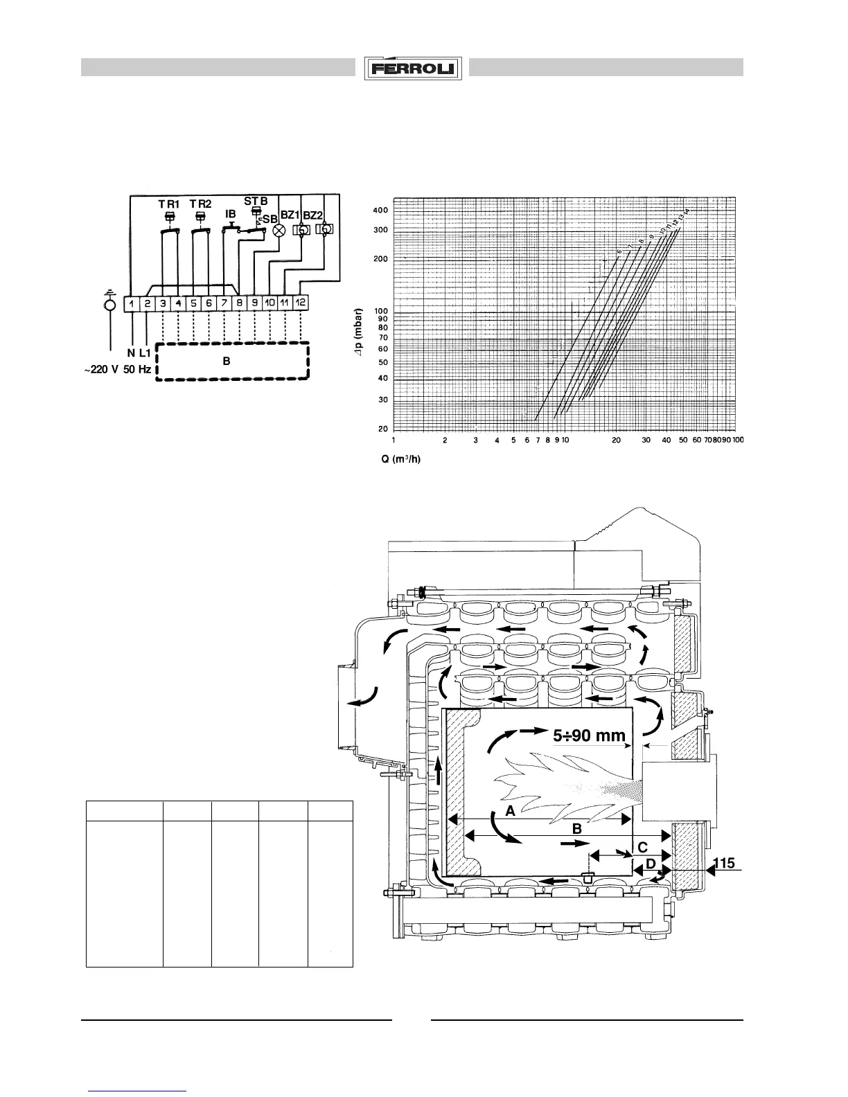
Wiring diagram (fig. 6) Load loss diagram (fig. 7)
Fig. 6
BOILER Amm Bmm Cmm Dmm
GN3.06 600 618 520 98
GN3.07 600 618 520 98
GN3.08 750 785 520 115
GN3.09 750 785 520 115
GN3.10 950 1000 650 130
GN3.11 950 1000 650 130
GN3.12 1200 1280 650 160
GN3.13 1200 1280 650 160
GN3.14 1200 1280 650 160
Fig. 8
Key
TR1 1st burner stage adjuster thermostat
TR2 2nd burner stage adjuster thermostat
IB Burner switch
STB Safety thermostat
BZ1 1st stage burner hour counter
BZ2 2nd stage burner hour counter
B Burner plant panel
SB Burner safety warning light
Fig. 7
Fumes route (fig. 8)

Related product manuals