EasyManua.ls Logo

Ferroli GN 3 - Installation; Base Requirements; Boiler Positioning; Electrical Connection

Ferroli GN 3
28 pages
Print Icon
To Next Page IconTo Next Page
To Next Page IconTo Next Page
To Previous Page IconTo Previous Page
To Previous Page IconTo Previous Page
Loading...
9
GN3
INSTALLATION
The boiler must only be installed by qualified Personnel,
in compliance with the Manufacturer’s instructions and all
the Laws and provisions which govern the matter.
Particular attention should be paid to safety Provisions
and those which govern the construction and location of
flues.
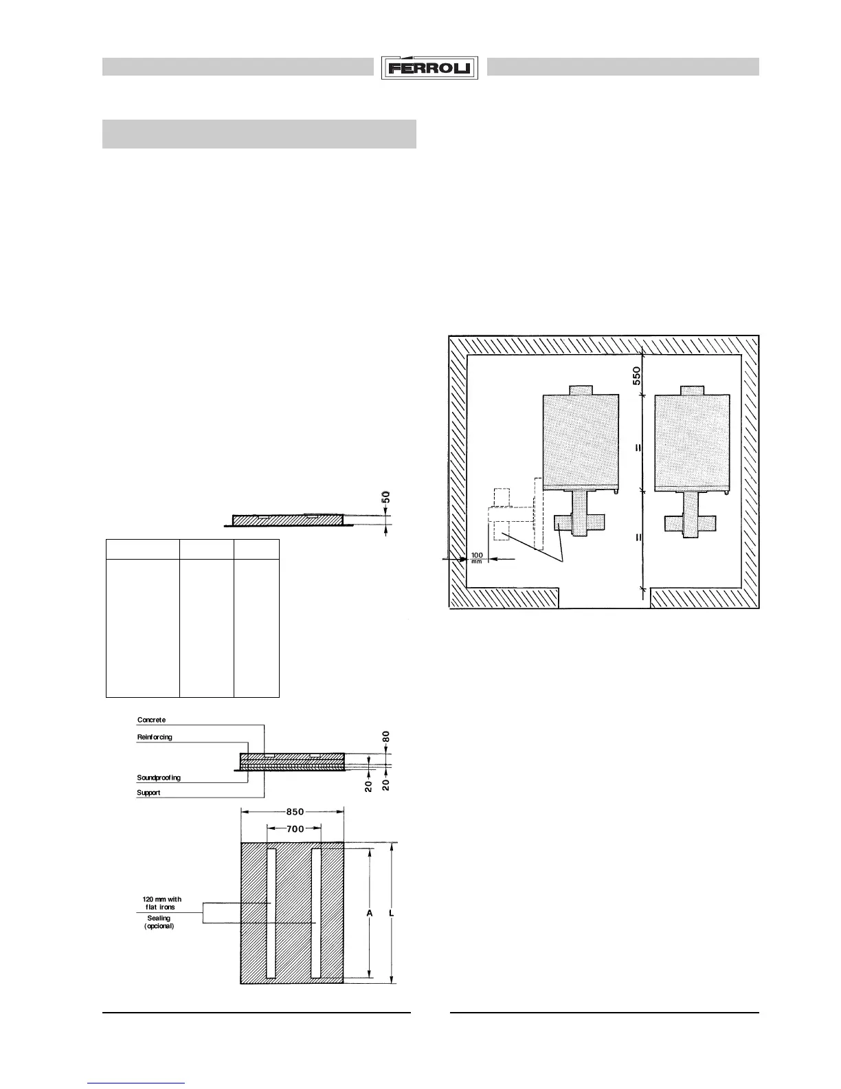
Base (fig. 9)
GN3 is a boiler which does not require a special base.
Just prepare a simple plinth which can be reinforced if
necessary, in order to facilitate boiler positioning. In some
cases, particular installations may require a special
soundproofed base.
Boiler positioning (fig. 10)
When building the base check, after boiler assembly with
the
burner on the front door, that this latter can open without
the burner hitting against the wall or any other boiler in the
vicinity. Leave a free space of at least 100 mm from the
part towards which the door swings.
A free space should also be left in front of the boiler. This
space should equal the length of the boiler itself and allow
the cylinder to be removed from the combustion cham-
ber.
Burner
Electrical connection
Only qualified Personnel should complete the electrical
connections of the boiler and control panel or the burner
and plant connections.
Always connect the boiler to a good grounding system.
FERROLI S.p.A. declines all responsibility for damages
to persons and/or property caused by failure to connect
the appliance to a good grounding system.
Hydraulic connection
The hydraulic connections of the boiler should be accom-
plished in compliance with the indications given near
each union and those included in the Technical Brief.
Connection must be carried out so that the pipes are free
from tensions. It is obligatory to mount the safety valve on
the heating circuit, as near as possible to the boiler but
without any obstruction or on-off device between the
boiler itself and the valve. Valve setting should be 3 bar.
The appliance is not supplied with expansion tank.
Connection of this latter shall therefore be at the Installe-
r’s charge. Remember that pressure in the system when
cold, must be between 0.5 and 1 bar.
ELEMEN. A mm L mm
GN3.06 780 1010
GN3.07 910 1140
GN3.08 1040 1270
GN3.09 1170 1400
GN3.10 1300 1530
GN3.11 1430 1660
GN3.12 1560 1790
GN3.13 1690 1920
GN3.14 1820 2050
Normal base
Soundproofed base
Fig. 10
Fig. 9
Burner

Related product manuals