EasyManua.ls Logo

Ferroli optima 201 - Page 25

Ferroli optima 201
32 pages
Print Icon
To Next Page IconTo Next Page
To Next Page IconTo Next Page
To Previous Page IconTo Previous Page
To Previous Page IconTo Previous Page
Loading...
201
25
Key
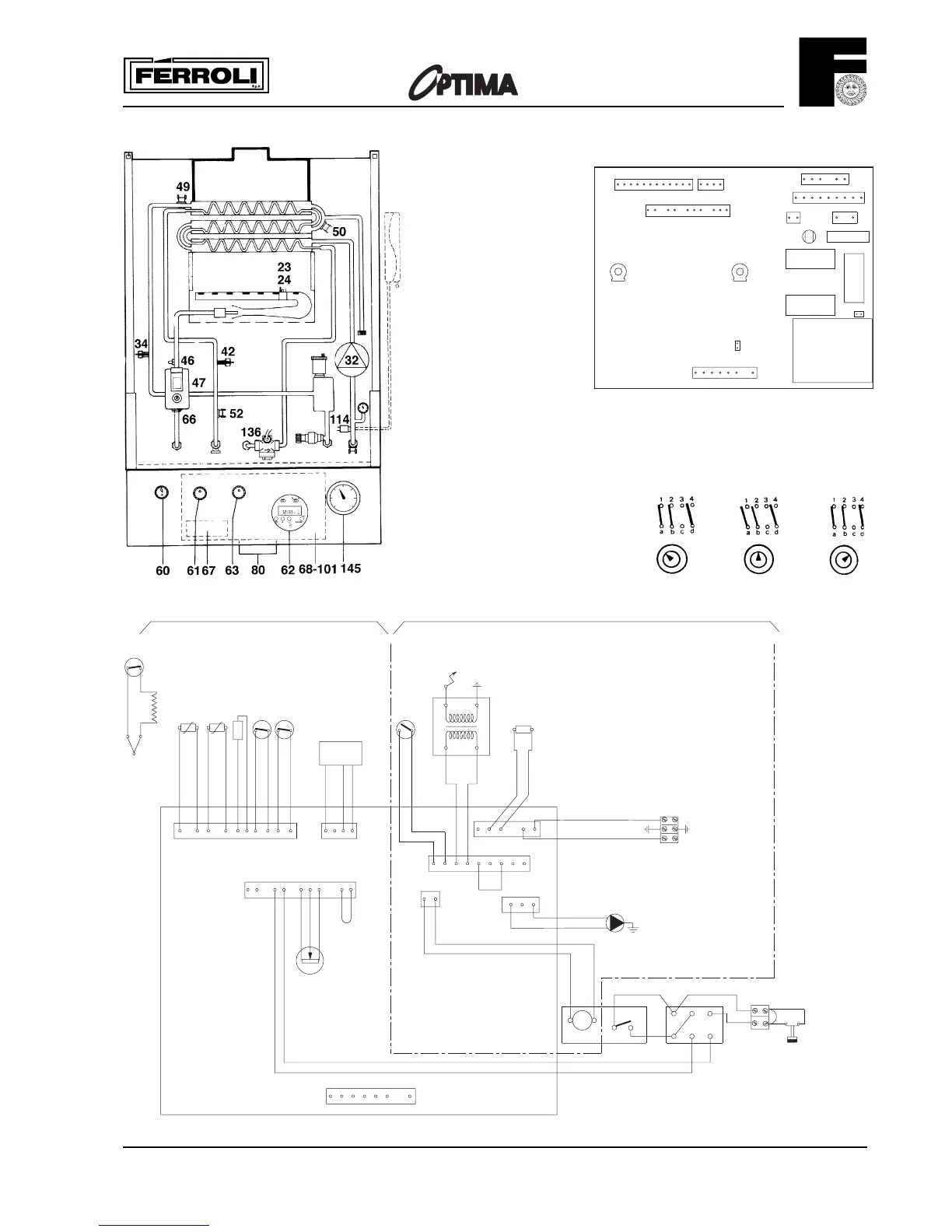
23 Thermocouple
24 spark electrode
32 Central heating pump
34 C.H. flow temperature sensor
42 D.H.W. temperature sensor
46 Operator gas valve
47 Modulating regulator
(Modureg) gas valve
49 Overheat cut-off thermostat
50 Heat exchan. limit thermostat
52 D.H.W. limit thermostat
60. Extended control kob to gas valve
61 C.H. selector switch
62 Time clock
63 C.H. boiler thermostat
66 Microswitch combination
gas valve
67 Ignition transformer
68. Control box with P.C.B.
72 Room thermostat (not fitted)
80 240V + 24V roomstat terminal blocks
101 P.C.B.
114 Water pressure switch
136 Flowmeter
145 C.H. pressure switch
P1 = C.H. max. output
(to be set on site)
P2 = D.H.W. temperature
(factory set)
J1 Jumper links on P.C.B.
JP1 Must is not required
12 1
TR1
X4
X6
234
X2
RY1
X1
2AT
230V
50Hz
1
11 10
7263512 910
12
P1
X3
6 5
3
4
1
F1
987654321
X8
123456789
X5
1
2
X7
JP4
13
L7
RY2
RY4
JP1
P2
L
21
N
24
23
49
72
24V
M
2
1 5
5
3
4
2
d
a
b
4
80
1
34825
-
6791
X6
X3
X7
X4
X2
6
12
10 9 5 362713
4
12
5
213
21
1
X8
678
47
34
34
50
136
63
9
OUT
10
X1
220V ~ 50 Hz.
1
24 V
220V
N
L
80
31245
X5
VMF7
42
+
812
32
66
67
46
114
Hot water only
Heating
continuous and hot water
61. C.H. selector switch
Heating timed and hot water

Related product manuals