EasyManua.ls Logo

FireClass FC503 - Installation Manual; Manual Keywords and Symbols

FireClass FC503
16 pages
Print Icon
To Next Page IconTo Next Page
To Next Page IconTo Next Page
To Previous Page IconTo Previous Page
To Previous Page IconTo Previous Page
Loading...
8
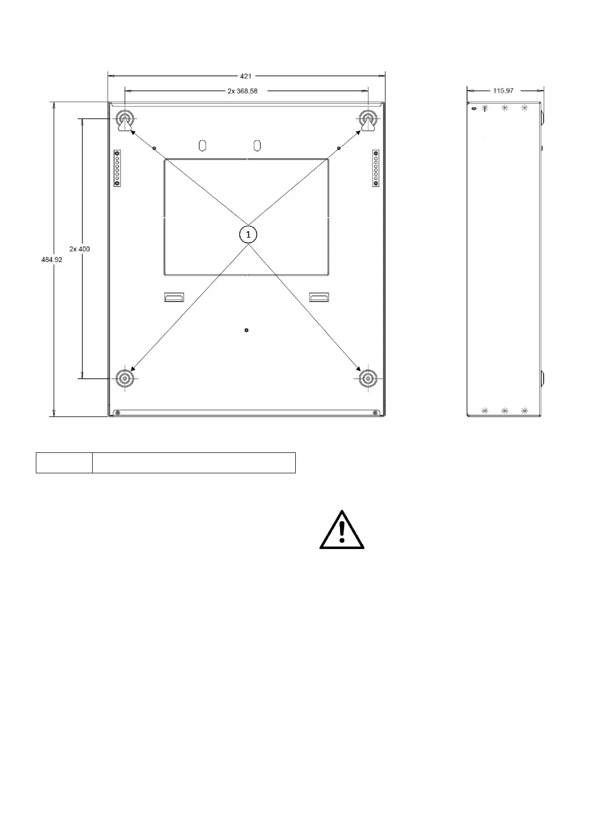
Figure 3: Cabinet dimension details
Note: All dimensions are in mm.
1
Mounting holes
Pre-commissioning checks
Create temporary connections to test the wiring for
continuity and insulation.
Complete the following steps for pre-commissioning
checks:
1. Run the loop wiring around the building and
wire up the detector bases according to the
system plan or design.
2. Run any other wiring required for ancillary
modules.
3. Label the “+” and “-” conductors and connect
them to the corresponding terminals of the
detector bases.
Where screened cables have been used and
no earth connections are provided at the
device, join the loop screen connections
together using terminal block connector to
maintain the integrity of the loop earth.
CAUTION
Do not wire in any isolator bases and
modules or fit the detectors until pre-
commissioning checks are complete. The
items will be damaged by any high
voltage insulation checks performed. Use
terminal block connectors for any
temporary connections to preserve
continuity. Details for wiring individual
devices are provided with the items.
Do not make the final connections at the
control panel. Testing the wiring requires
access to the free ends of the wires.
4. Pull the cables through the appropriate
knockouts of the control panel. Use glands as
appropriate and leave generous free ends of
the wires.
5. Connect the loop free ends of the wire to a
terminal block connector. Place loosely in the
cabinet to avoid accidental connection to the

Other manuals for FireClass FC503

Related product manuals