EasyManua.ls Logo

Fischer Panda 12000 - Installation of the Water Cooled Exhaust System; Installation of the Standard Exhaust System

Fischer Panda 12000
250 pages
Print Icon
To Next Page IconTo Next Page
To Next Page IconTo Next Page
To Previous Page IconTo Previous Page
To Previous Page IconTo Previous Page
Loading...
Installation Instructions
Seite/Page 84 - Kaptitel/Chapter 6: Installation Instructions 18.12.15
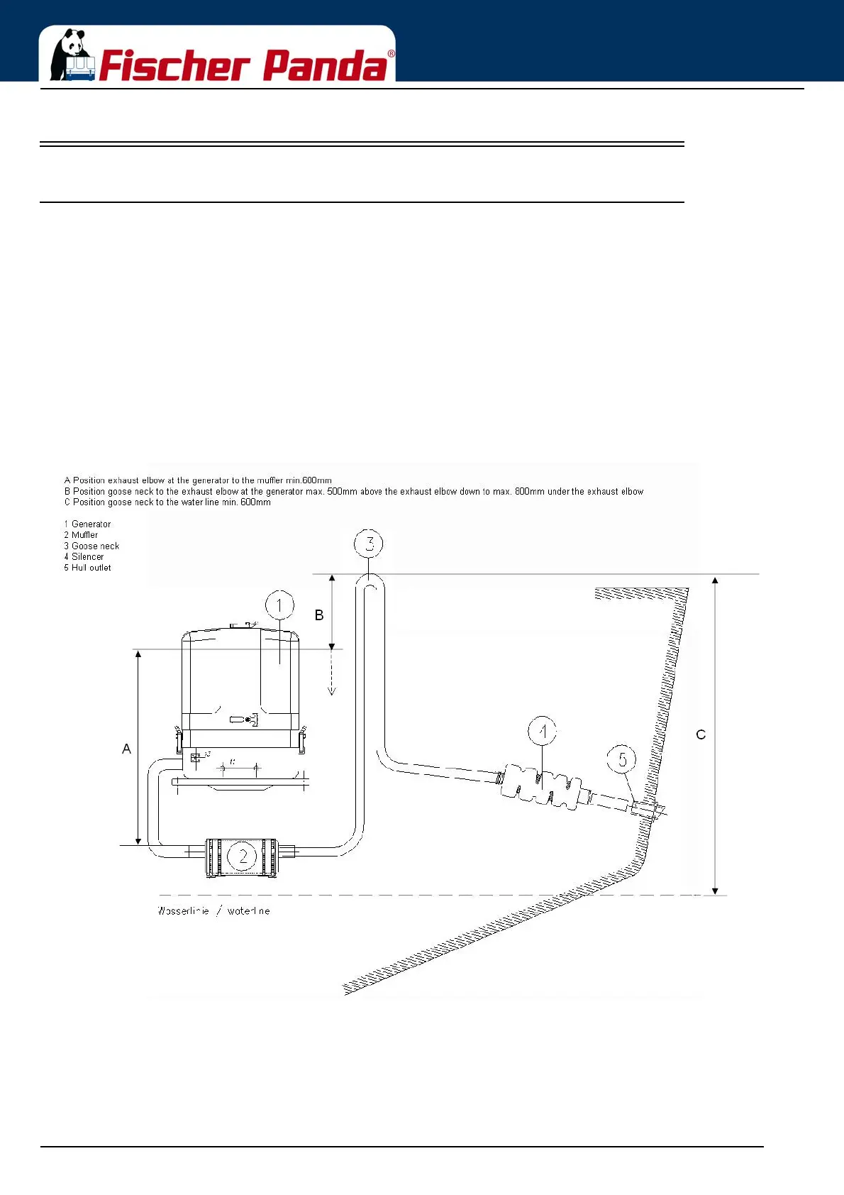
6.10 Installation of the water cooled exhaust system
6.10.1 Installation of the standard exhaust system
The generator exhaust system must remain completely independent and separate from the exhaust system of any
other unit(s) on board. The water lock must be installed at the lowest point of the exhaust system. An optional noise
insulated water lock can also be installed. The exhaust hose descends from the capsule to the water lock. Then the
hose rises via the „goose neck“ to the silencer (see drawing). The goose neck must be vertical and sit preferably
along the ship's keel centre line. In order that the back pressure inside the exhaust is not to high, the total length of
the exhaust system should not exceed 6 m (20 ft.)
By injecting the outlet raw water into the exhaust manifold, the exhaust gases are cooled and the noise emissions
from the exhaust system are reduced.
Exhaust diameter see section 9.10, “Diameter of conduits,”
on page 207
Fig. 6.10.1-1: Installation Scheme Standard Exhaust System

Table of Contents

Related product manuals