EasyManua.ls Logo

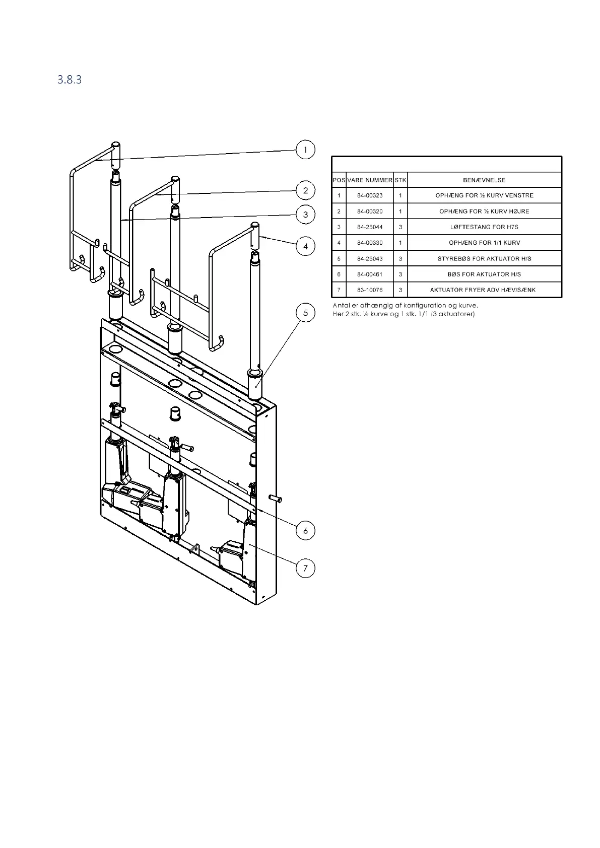
FKI ADV - Spare Parts List Automatic Raise;Lowering for Fryer ADV DF

FKI ADV
44 pages
Print Icon
To Next Page IconTo Next Page
To Next Page IconTo Next Page
To Previous Page IconTo Previous Page
To Previous Page IconTo Previous Page
Loading...
25
Spare parts list Automatic Raise/lowering for Fryer ADV DF