EasyManua.ls Logo

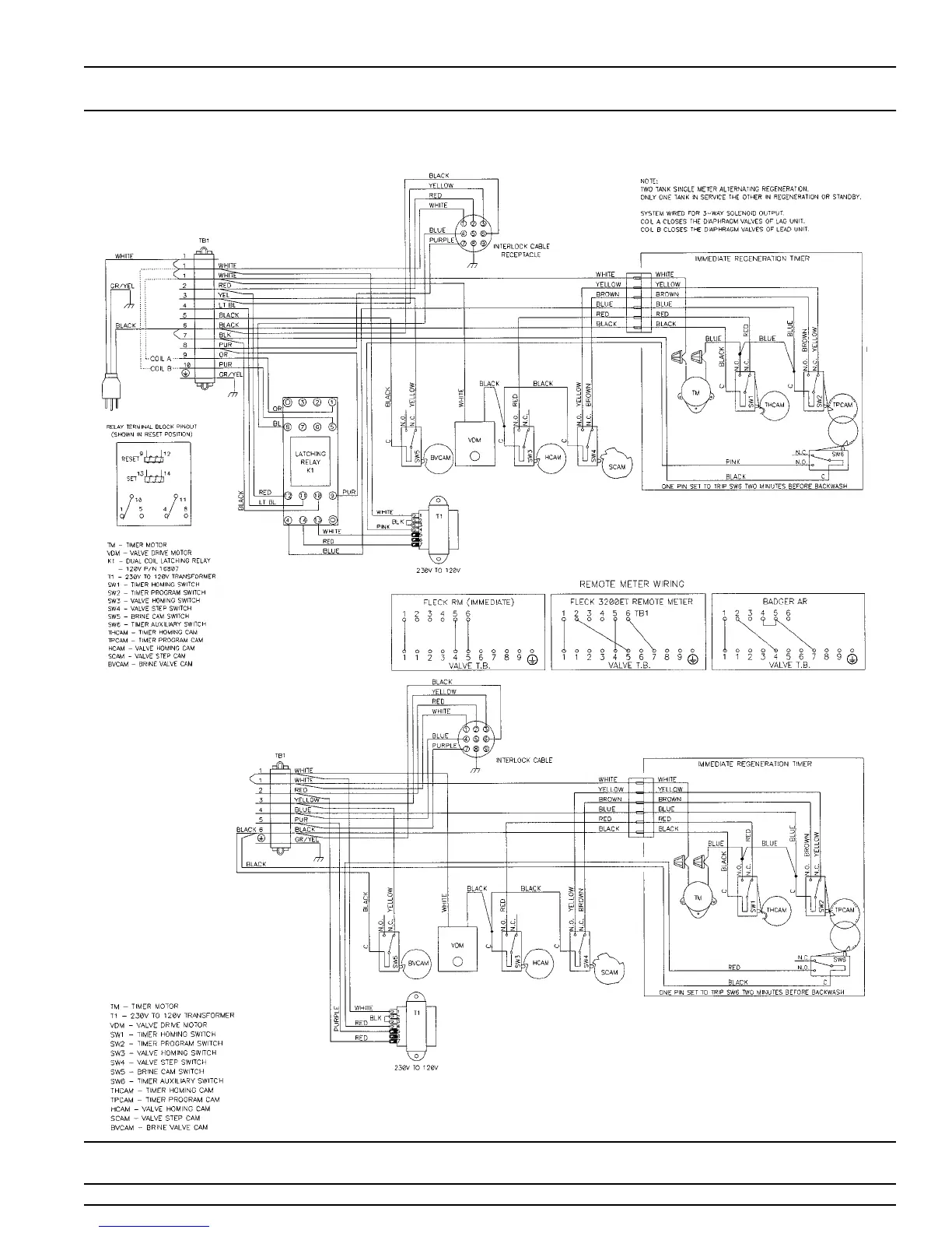
Fleck 2750 - 2750 230 V System #7 Valve Wiring

Fleck 2750
34 pages
Print Icon
To Next Page IconTo Next Page
To Next Page IconTo Next Page
To Previous Page IconTo Previous Page
To Previous Page IconTo Previous Page
Loading...
Printed in U.S.A.
Page 25
2750 230V System #7
Valve Wiring

Related product manuals