EasyManua.ls Logo

FLIGHT DESIGN CTSW - Appendix 3: Weight & Balance Samples; LSA Registration Sample; CG Location Graph

FLIGHT DESIGN CTSW
59 pages
Print Icon
To Next Page IconTo Next Page
To Next Page IconTo Next Page
To Previous Page IconTo Previous Page
To Previous Page IconTo Previous Page
Loading...
Aircraft Type: CTSW
FLIGHT DESIGN
Aircraft Operating Instructions
Page: 10
AU 010 01000
Rev. No: 7
Original Issue Date: 28-Feb-2005
Revision Date: 29-Apr-2008
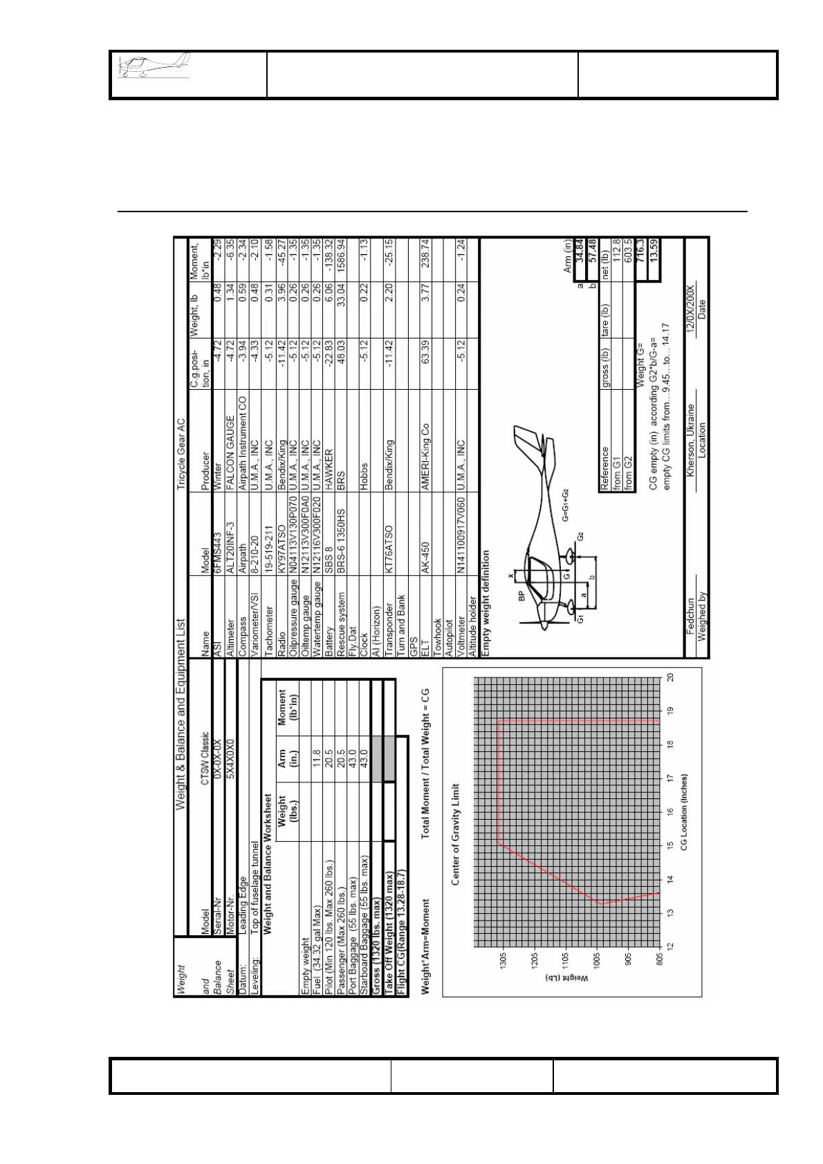
Appendix 3. Samples of the Weight & Balance and Equipment List
Sample of the Weight & Balance and Equipment List for aircrafts with LSA registration
The acceptable empty Cg range is 9.45 to 14.17 inches.

Table of Contents

Other manuals for FLIGHT DESIGN CTSW

Related product manuals