EasyManua.ls Logo

Franke 602-16 - Installasjon

Franke 602-16
Print Icon
To Next Page IconTo Next Page
To Next Page IconTo Next Page
To Previous Page IconTo Previous Page
To Previous Page IconTo Previous Page
Loading...
INSTALLASJON
Kjøkkenhetten er designet for montering
under overskap, innebygd i eller mellom
skap. Kjøkkenhetten har en transformator
for regulering av sentralventilatoren samt
mulighet for våtromsventilasjon. Kjøkken-
hetten er utstyrt med elektronisk styring,
motordrevet spjeld, LED-belysning og me-
talltrådfilter. Installasjon, pleie, vedlikehold
osv. står forklart i denne bruksanvisningen.
TEKNISKE DATA
267
Ø160
Ø150
30
33
216
235
261
24
112
478
104
31
26
598
289
82
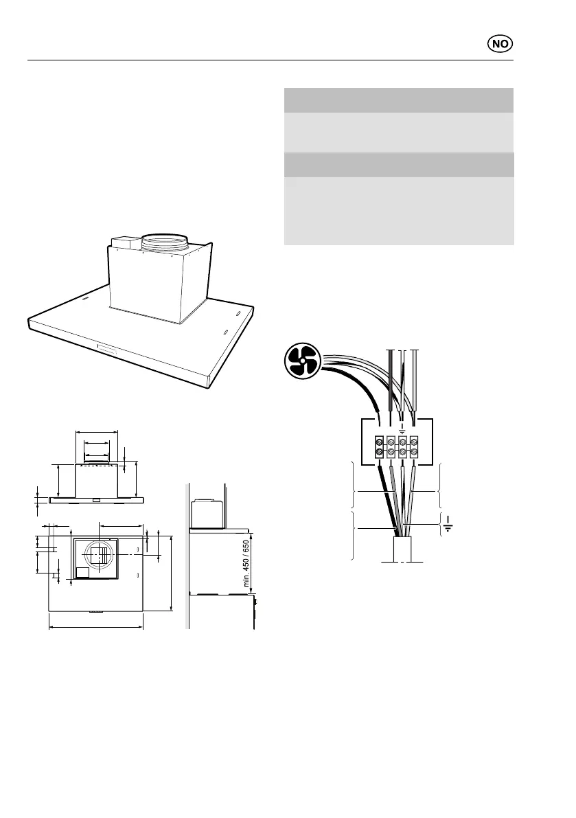
Fig. 1
Mål
se Fig. 1
Elektrisk
tilkobling
230 V med
vernejording
Belysning LED 2 x 2 W
Utgangs-
spenning fra
transforma-
toren
60, 80, 100, 130, 145 og
180 V
Ved levering er 100 og
130 V koblet inn.
INSTALLASJON
Monteringsdetaljer, festeskruer, mm. leve-
res sammen med kjøkkenhetten.
Elektrisk installasjon
L N1
Brun
Brun
Brun
Ruskea
Svart
Sort
Svart
Musta
Blå
Blå
Blå
Sininen
Fig. 2
Det skal være en fast kobling og kjøkken-
hetten skal være utstyrt med en allpolet
bryter.
Koblingsboks eller vegguttak skal være lett
tilgjengelig etter installasjon.
Montering
Ta ut fettfilter Fig. 11.
32
991.0357.831/D000000006694/180163/2021-09-24

Related product manuals