EasyManua.ls Logo

Franke 602-16 - Installation

Franke 602-16
Print Icon
To Next Page IconTo Next Page
To Next Page IconTo Next Page
To Previous Page IconTo Previous Page
To Previous Page IconTo Previous Page
Loading...
INSTALLATION
Spiskåpan är avsedd för montering under
överskåp, infälld eller mellan skåp. Spiskå-
pan har transformator för reglering av cent-
ralfläkt samt möjligheter till
våtrumsventilation. Spiskåpan är utrustad
med elektronisk styrning, motordrivet
spjäll, LED-belysning och metalltrådsfilter.
Installation, användning, skötsel, underhåll
mm framgår av denna anvisning.
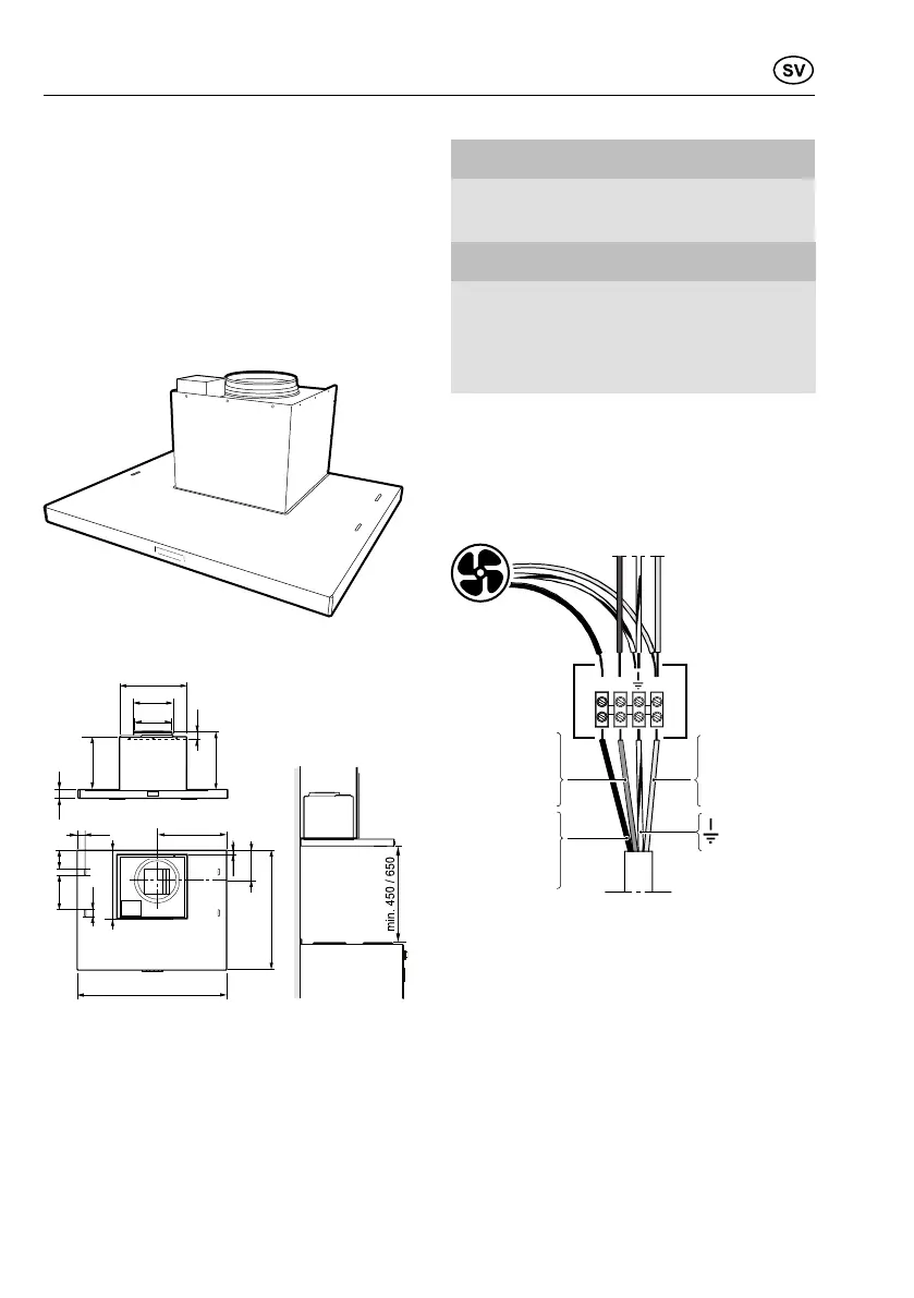
TEKNISKA UPPGIFTER
267
Ø160
Ø150
30
33
216
235
261
24
112
478
104
31
26
598
289
82
Fig.1
Mått
se Fig.1
Elektrisk
anslutning
230 V ~ med skyddsjord.
Belysning LED 2 x 2 W
Utgående
spänning
från trans-
formator
60, 80, 100, 130, 145
och 180 V
Vid leverans är 100 och
130 inkopplad.
INSTALLATION
Monteringsdetaljer, skruvar för uppfästning
mm levereras med spiskåpan.
Elektrisk installation
L N1
Brun
Brun
Brun
Ruskea
Svart
Sort
Svart
Musta
Blå
Blå
Blå
Sininen
Fig.2
Anslutningen skall göras fast och spiskåpan
måste föregås av en allpolig brytare.
Kopplingsbox eller vägguttag ska vara åt-
komligt efter installation.
Montering
Ta bort fettfilter Fig.11.
4
991.0357.831/D000000006694/180163/2021-09-24

Related product manuals