EasyManua.ls Logo

Frick Vyper 305 - Page 13

Frick Vyper 305
68 pages
Print Icon
To Next Page IconTo Next Page
To Next Page IconTo Next Page
To Previous Page IconTo Previous Page
To Previous Page IconTo Previous Page
Loading...
VYPER
VARIABLE SPEED DRIVE
INSTALLATION
100-200 IOM (FEB 09)
Page 13
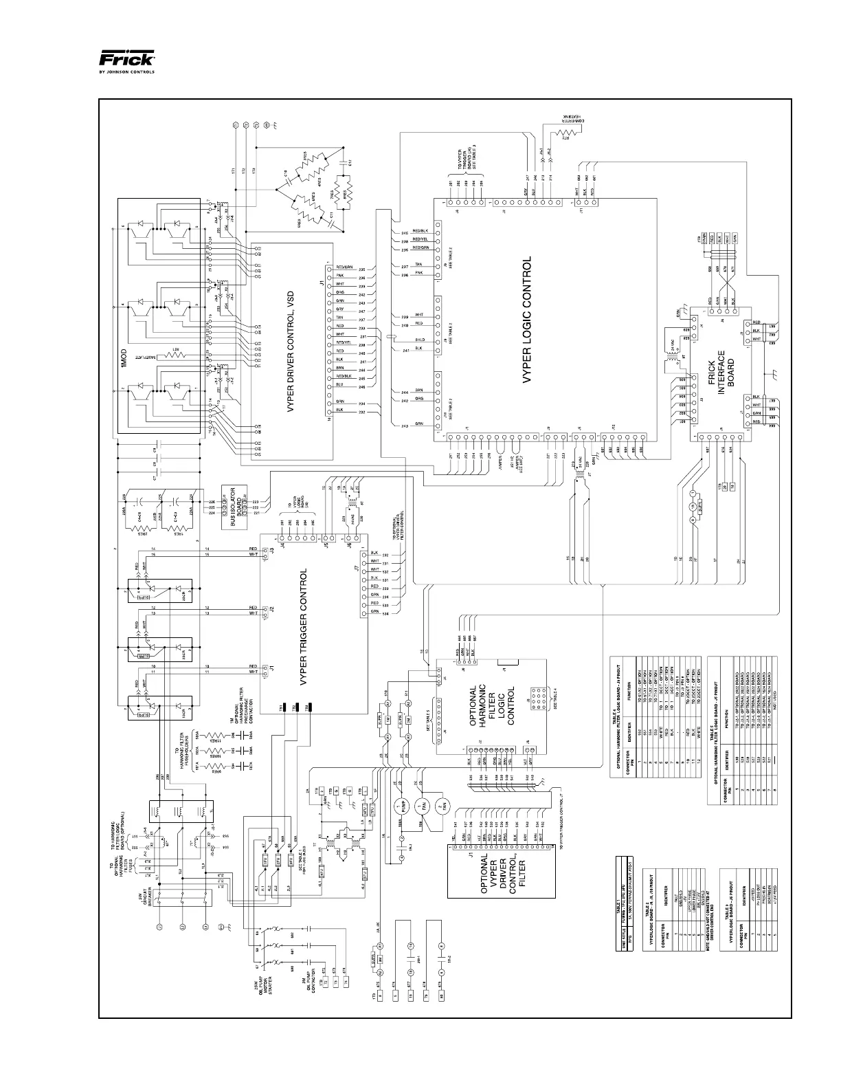
Figure 6 - Vyper
Elementary Wiring Diagram
NOTE: Drawings for specific units can be
found in the door of the Vyper drive or
check with Frick Engineering department.

Table of Contents

Related product manuals