EasyManua.ls Logo

Frick Vyper 305 - Power and Control Wiring Entry Locations

Frick Vyper 305
68 pages
Print Icon
To Next Page IconTo Next Page
To Next Page IconTo Next Page
To Previous Page IconTo Previous Page
To Previous Page IconTo Previous Page
Loading...
VYPER
VARIABLE SPEED DRIVE
INSTALLATION
100-200 IOM (FEB 09)
Page 21
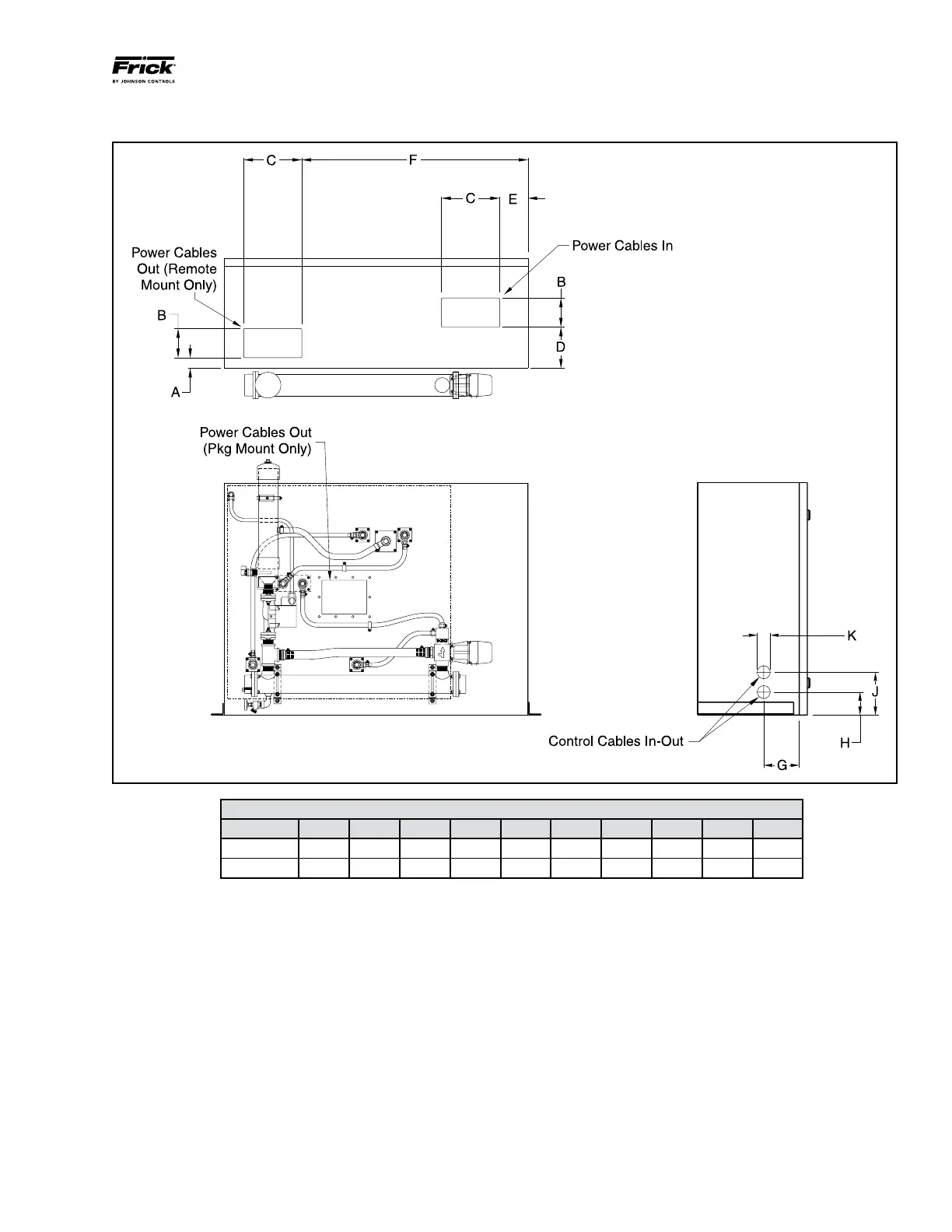
Dimensions in Inches *
Drive HP A B C D E F G H J K
305/254 1.63 4.50 9.00 6.38 4.38 35.00 5.50 3.56 6.63 2.00
437/362 6.63 6.75 10.13 2.00 3.25 40.53 2.25 3.00 13.00 2.00
*Contact factory for detailed dimensions.
POWER AND CONTROL WIRING ENTRY LOCATIONS

Table of Contents

Related product manuals