EasyManua.ls Logo

Frick Vyper 305 - Analog Board Wiring

Frick Vyper 305
68 pages
Print Icon
To Next Page IconTo Next Page
To Next Page IconTo Next Page
To Previous Page IconTo Previous Page
To Previous Page IconTo Previous Page
Loading...
VYPER
VARIABLE SPEED DRIVE
INSTALLATION
100-200 IOM (FEB 09)
Page 26
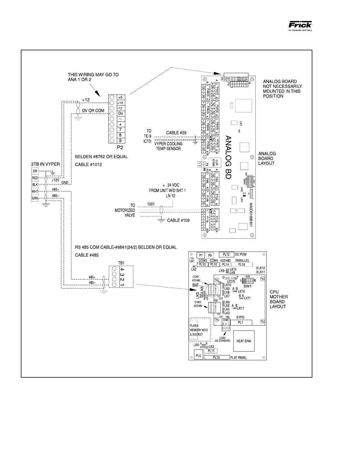
ANALOG BOARD WIRING
Figure 21

Table of Contents

Related product manuals