EasyManua.ls Logo

Friedrich SL22N30 - Page 75

Friedrich SL22N30
95 pages
Print Icon
To Next Page IconTo Next Page
To Next Page IconTo Next Page
To Previous Page IconTo Previous Page
To Previous Page IconTo Previous Page
Loading...
74
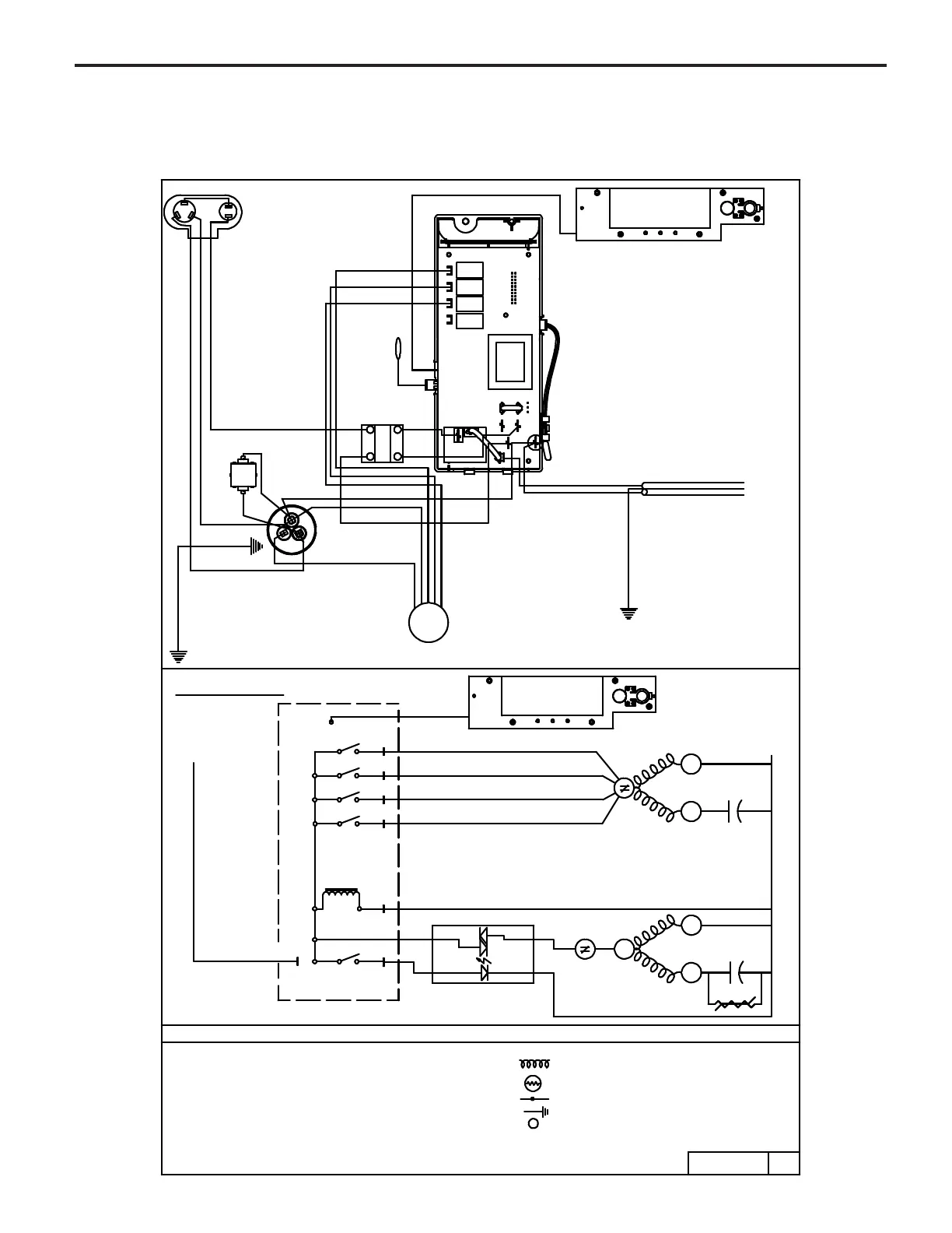
Kϋhl Electronic Control
COOL ONLY Models
SL36N30-A
HIGH
MAX
MEDIUM
R
S
R
S
C


F4
F3
F1
NEUTRAL
(115 V)
92170018
COMP
L1
L2 OR N
4
3
1
5
LOW
F22
L E G E N D
U
S
E
R
I
N
T
E
R
F
A
C
E
SCHEMATIC
(230/208 V)L2
OLP
OLP
COMPRESSOR
HERM COM
CAP
FAN MTR
FAN
COM
CAP
PART NO. REV.
01
SSR
- THERMISTER
- REVERSING VALVE
- COMBINATION TERMINAL
- HEATER ELEMENT
- INSULATOR
- GROUNDED LEAD SYMBOL
T
HTR
- FAN MOTOR
- COMPRESSOR
- CAPACITOR
COMPR
MTR
CAP
- USER INTERFACE
- OVERLOAD PROTECTOR
- THERMAL FUSE
- HEATER LIMIT FUSE
HL
UI
TF
OLP
2
1
4
3
PTCR
TO CAPACITOR
BRACKET
BLUE
c
F
A
N
RED
R
-
F
-
-
F
-
S
-
F
-
C
TO CHASSIS
BLACK
RED
WHITE
BROWN
BLUE
BLACK
WHITE
WHITE
G
R
E
E
N
O
R
Y
E
L
L
O
W
/
G
R
E
E
N
H
E
R
M
FAN
MOTOR
WHITE
BLACK
BLACK
SSR
BLUE
ELECTRONIC CONTROL
POWER SUPPLY
230/208/115VAC
INDOOR AMBIENT THERMISTOR
DISCHARGE AIR
THERMISTOR
VOLTAGE SELECTOR JUMPER WIRE
L1
L2

Table of Contents