EasyManua.ls Logo

Friedrich SL22N30 - Heat Pump Models

Friedrich SL22N30
95 pages
Print Icon
To Next Page IconTo Next Page
To Next Page IconTo Next Page
To Previous Page IconTo Previous Page
To Previous Page IconTo Previous Page
Loading...
78
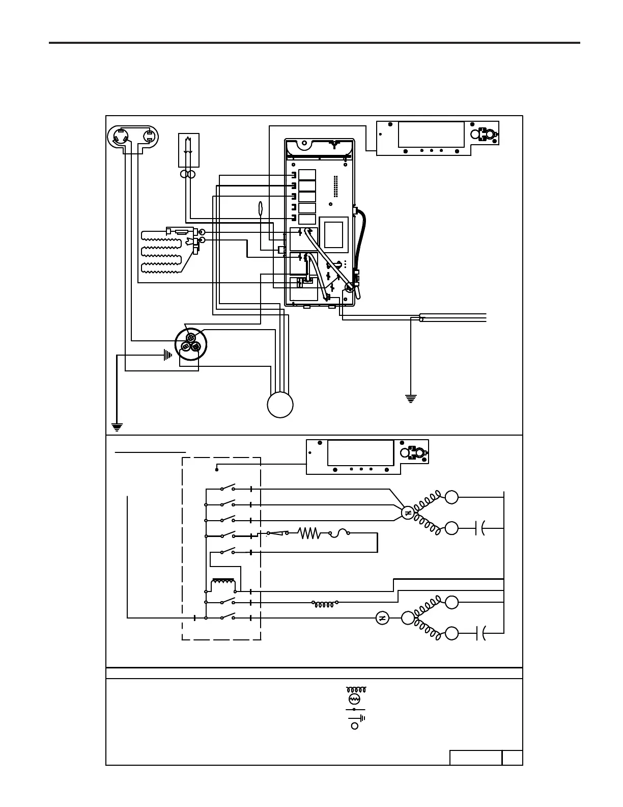
Kϋhl Electronic Control
HEAT PUMP models
YS12N33-A, YM18M34-A
MEDIUM
LOW
HIGH
R
S
R
S
C
COMPRESSOR


F4
F3
NEUTRAL
(115 V)
92170016
COMP
L1
L2 OR N
4
3
5
F22
- HEATER ELEMENT
- INSULATOR
- GROUNDED LEAD SYMBOL
- COMBINATION TERMINAL
- THERMISTER
T
HTR
CAP
COMPR
UI
OLP
HL
TF
- HEATER LIMIT FUSE
- USER INTERFACE
- OVERLOAD PROTECTOR
- FAN MOTOR







- THERMAL FUSE
- COMPRESSOR
- CAPACITOR
MTR
L E G E N D
U
S
E
R
I
N
T
E
R
F
A
C
E
SCHEMATIC
(230/208 V)L2
OLP
OLP
COMPRESSOR
HERM COM
CAP
FAN MTR
FAN
COM
CAP
PART NO. REV.
01
- REVERSING VALVE
ELECTRIC HEAT
ELECTRIC HEAT
HL
TF
HTR
7
EH2
EH1
1
RV
REVERSING CYCLE
RV
8
TO CAPACITOR
BRACKET
BLUE
BLACK
c
F
A
N
RED
R
-
F
-
-
F
-
S
-
F
-
C
TO CHASSIS
BLACK
ORANGE
WHITE
BROWN
BLUE
BLACK
WHITE
WHITE
G
R
E
E
N
O
R
Y
E
L
L
O
W
/G
R
E
E
N
H
E
R
M
FAN
MOTOR
B
L
U
E
BLACK
HEATER
RED
ORANGE
ELECTRONIC CONTROL
POWER SUPPLY
230/208/115VAC
LINE_N2
LINE _L5
J18
LINE_L3
COMP
RELAY
EH2
RELAY
EH1
RELAY
RV
RELAY
F4
RELAY
F1
RELAY
F3
RELAY
F2
RELAY

Table of Contents

Related product manuals