EasyManua.ls Logo

Frigidaire FDD40J - Two Speed Wiring Diagrams

Frigidaire FDD40J
25 pages
Print Icon
To Next Page IconTo Next Page
To Next Page IconTo Next Page
To Previous Page IconTo Previous Page
To Previous Page IconTo Previous Page
Loading...
18
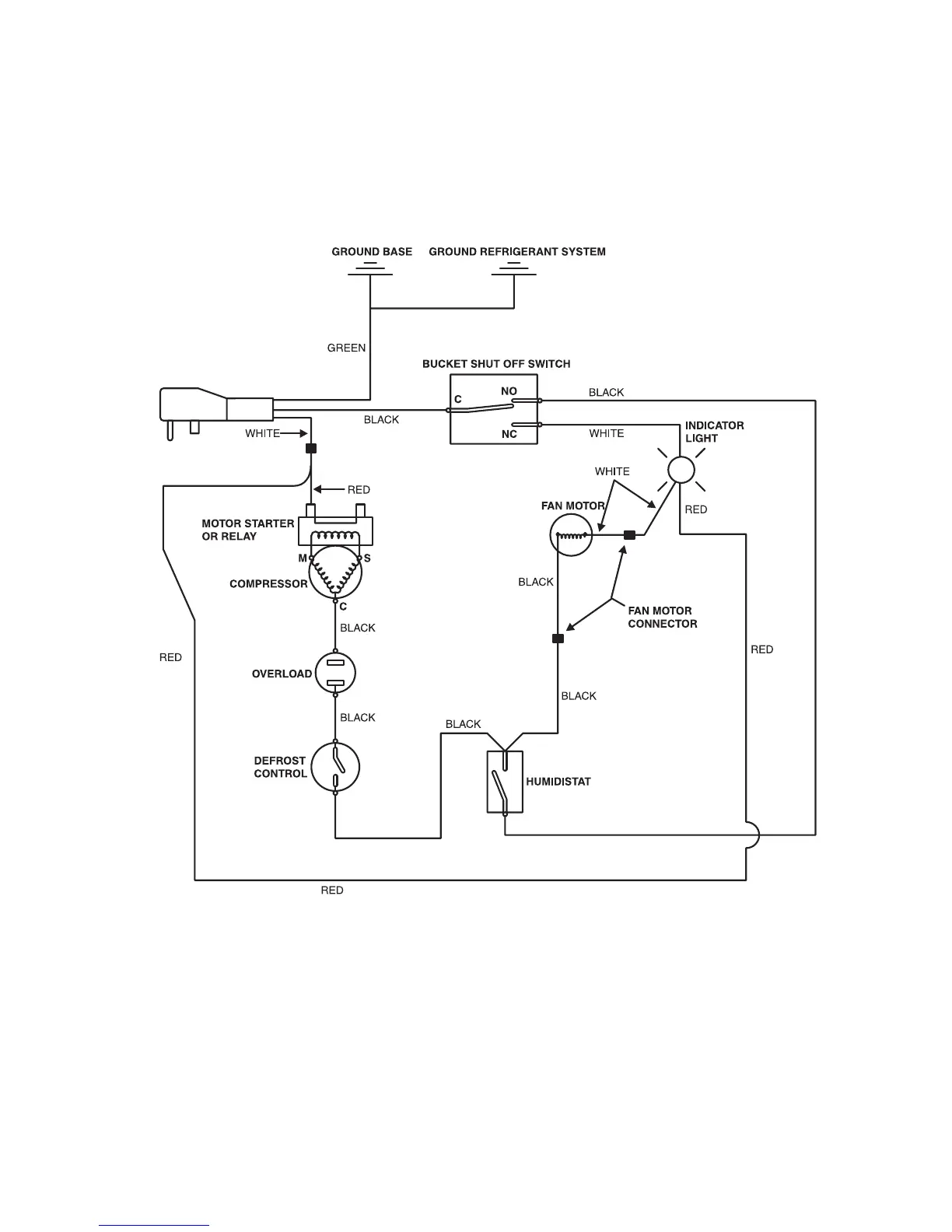
WIRING DIAGRAMS - DATA SHEETS
ELECTRICAL WIRING DIAGRAM
Single Speed Fan - Models With Reciprocating Compressors

Related product manuals