EasyManua.ls Logo

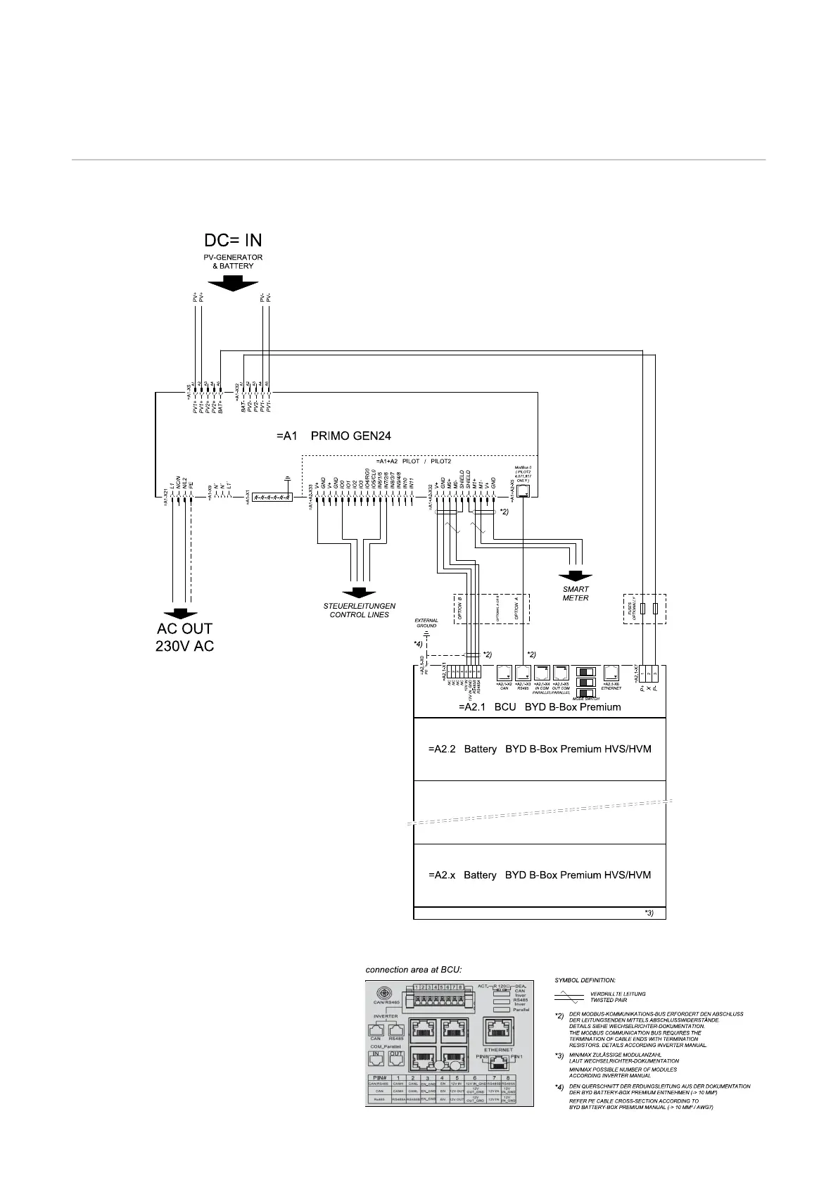
Fronius Primo GEN24 5.0 Plus - Fronius Primo GEN24 and BYD Battery-Box Premium HV; Circuit Diagram

Fronius Primo GEN24 5.0 Plus
232 pages
To Next Page IconTo Next Page
To Next Page IconTo Next Page
To Previous Page IconTo Previous Page
To Previous Page IconTo Previous Page
Loading...
Fronius Primo GEN24 and BYD Battery-Box
Premium HV
Circuit Diagram
209

Table of Contents

Other manuals for Fronius Primo GEN24 5.0 Plus

Related product manuals