EasyManua.ls Logo

Frymaster GF40 series - Page 20

Frymaster GF40 series
24 pages
Print Icon
To Next Page IconTo Next Page
To Next Page IconTo Next Page
To Previous Page IconTo Previous Page
To Previous Page IconTo Previous Page
Loading...
2-4
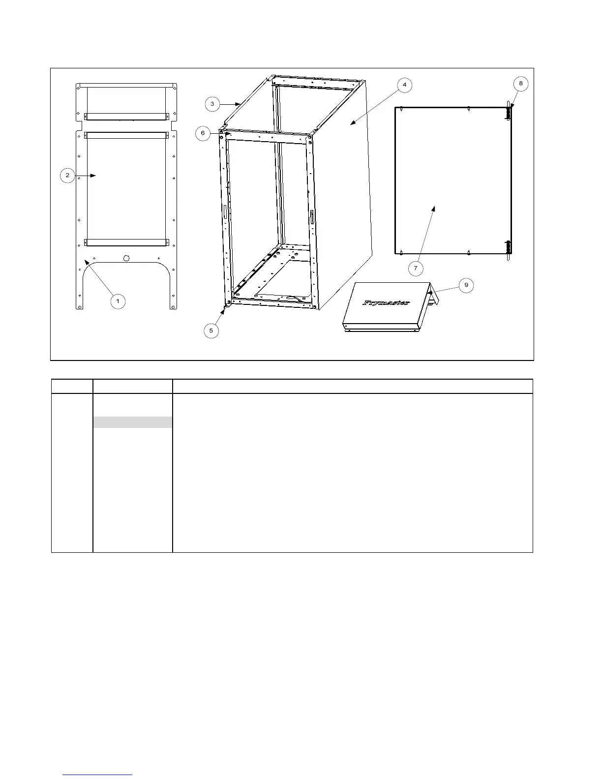
Cabinetry
Item Part # Component
1 200-6903 Back
2 816-0656 Insulation, back
Sides
3 201-6917 Side, left, stainless
4 202-6917 Side, right, stainless
* 212-6893 Right, painted
* 211-6893 Left, painted
5 230-4685 Hinge, lower
6 900-4813 Brace, cabinet top
7 106-9539 Door assembly
* 230-4960 Handle, universal
8 106-4067 Pin assembly
9 824-1914 Control panel
* 810-1105 Magnet, offset door

Related product manuals