EasyManua.ls Logo

Fuji Electric FVR-E11S-7EN

Fuji Electric FVR-E11S-7EN
116 pages
To Next Page IconTo Next Page
To Next Page IconTo Next Page
To Previous Page IconTo Previous Page
To Previous Page IconTo Previous Page
Loading...
9-8
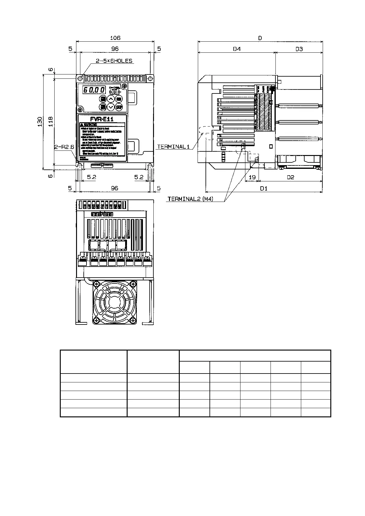
Installation screw size : M4 (4 pcs)
External dimensions (mm)
Type
Standard
applicable
motor [kW]
D D1 D2 D3 D4
FVR0.75E11S-7EN
0.75 126 115 63
40 86
FVR0.4E11S-4EN 0.4 126 115 63
40 86
FVR0.75E11S-4EN
0.75 150 139 87
64 86
FVR1.5E11S-4EN 1.5 170 159 87
64 106
FVR2.2E11S-4EN 2.2 170 159 87
64 106

Table of Contents

Related product manuals