EasyManua.ls Logo

Fuji Xerox ApeosPort-V C3320 - Auto Layout

Fuji Xerox ApeosPort-V C3320
633 pages
Print Icon
To Next Page IconTo Next Page
To Next Page IconTo Next Page
To Previous Page IconTo Previous Page
To Previous Page IconTo Previous Page
Loading...
HP-GL/2 Emulation
565
Appendix
15
Note The HP-GL emulation supports A5, A4, and B5 paper.
Auto Layout
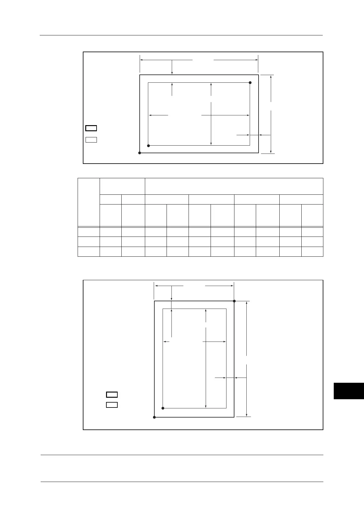
This section explains Auto Layout.
Paper
size
Paper Length
(1/7200 inch)
Coordinate Value (1/7200 inch)
X Axis Y Axis Margin Printable Area Top-right Edge Margin
Width Height Bottom
-
left X
Bottom
-
left Y
Long
Side
Short
Side
Top-
right X
Top-
right Y
XR YU
A4 59508 84168 1260 1260 56988 81648 58248 82908 1260 1260
A5 41940 59508 1260 1260 39420 56988 40680 58248 1260 1260
B5 51588 72828 1260 1260 49068 70308 50328 71568 1260 1260
Short-side
YU
Long-side
Bottom-left X, Bottom-left Y
(0, 0)
XR
Height
Printable Area
Top-right X, Top-right Y
Width
Physical paper size
Width
Short side
YU
(0, 0)
XR
Physical paper
size
Printable Area
Top-right X, Top-right Y
Long side
Height
Bottom-left X, Bottom-left Y

Table of Contents

Other manuals for Fuji Xerox ApeosPort-V C3320

Related product manuals