EasyManua.ls Logo

Fuji Xerox DocuCentre-IV C3375 - Printable Area

Fuji Xerox DocuCentre-IV C3375
731 pages
Print Icon
To Next Page IconTo Next Page
To Next Page IconTo Next Page
To Previous Page IconTo Previous Page
To Previous Page IconTo Previous Page
Loading...
HP-GL2 Emulation
665
Appendix
16
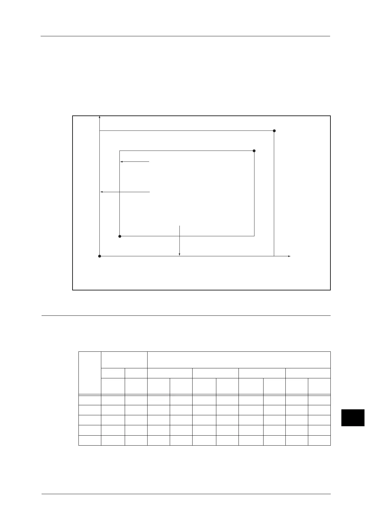
îš„ Paper
Defines a size same as the paper size as the hard clip area. However, the area that allows
actual printing is within the printable area.
The hard clip area can be set either with HP-GL emulation mode settings or by the specified
hard clip command "&I".
The following coordinate values present an example of when the origin is set at the lower
left (Auto Layout in HP-GL/2) of A3 sheet.
Printable Area
The printable area in the HP-GL mode is as follows:
îš„ Paper Size and Printable Area
Note • The HP-GL emulation supports five paper sizes: A3, A5, A4, B4, and B5.
Paper
size
Paper Length
(1/7200 inch)
Coordinate Value (1/7200 inch)
X Axis Y Axis Margin Printable Area Top-right Edge Margin
Width Height Bottom
-left X
Bottom
Left Y
Long
Side
Short
Side
Top-
right X
Top-
right Y
XR YU
A3 119052 84168 1260 1260 116532 81648 117792 82908 1260 1260
A4 84168 59508 1260 1260 81648 56988 82908 58248 1260 1260
A5 59508 41940 1260 1260 56988 39420 58248 40680 1260 1260
B4 103176 72828 1260 1260 100656 70308 101916 71568 1260 1260
B5 72828 51588 1260 1260 70308 49068 71568 50328 1260 1260
(16798, 11876)
(16442, 11520)
Standard Hard Clip Area
Paper Hard Clip Area
Paper Size
(0, 0) Standard origin
(0, 0) Paper origin
+X
+Y

Table of Contents

Other manuals for Fuji Xerox DocuCentre-IV C3375

Related product manuals