EasyManua.ls Logo

Fujitsu ARHG09LLTA

Fujitsu ARHG09LLTA
413 pages
To Next Page IconTo Next Page
To Next Page IconTo Next Page
To Previous Page IconTo Previous Page
To Previous Page IconTo Previous Page
Loading...
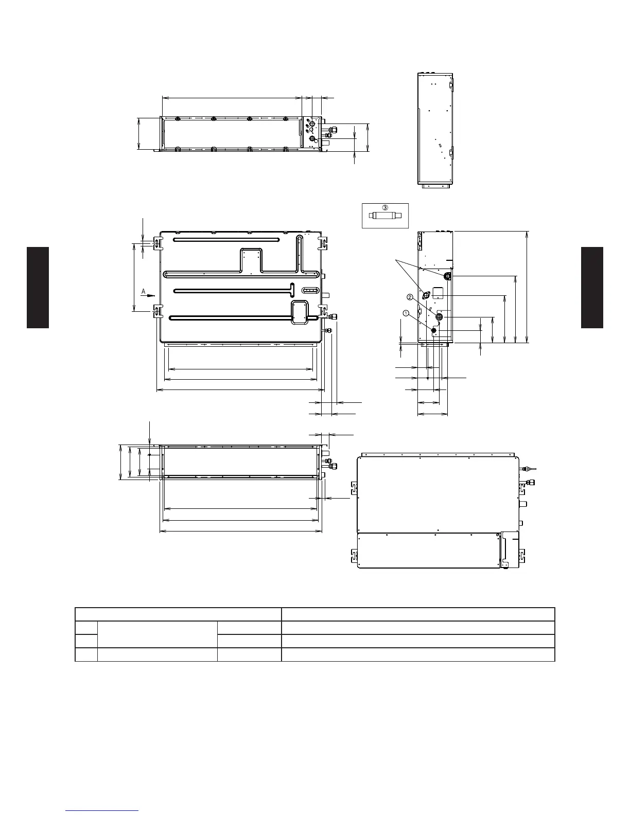
4. INDOOR UNITS
MODEL : AR
G18LLTA, AR
G18LLTB
Rear view
View A
Top view
Side view
Front view
Bottom view
(Drain hose)
Drain port
51
774
174
71
152
87
56
850
934
100 x 8 = 800
30
377
167
119
89
78
55
47
10
620
371
264
144
69
850
864
900
43
20
198
168
151
78
55
AR
G18LL
erigerant pipe are
connection
iuid  .   in.
as  .   in.
rain hose connection rain hose ..  P
nit  
    
INDOOR
UNITS
INDOOR
UNITS

Table of Contents

Related product manuals