EasyManua.ls Logo

Fujitsu ARHG09LLTA

Fujitsu ARHG09LLTA
413 pages
To Next Page IconTo Next Page
To Next Page IconTo Next Page
To Previous Page IconTo Previous Page
To Previous Page IconTo Previous Page
Loading...
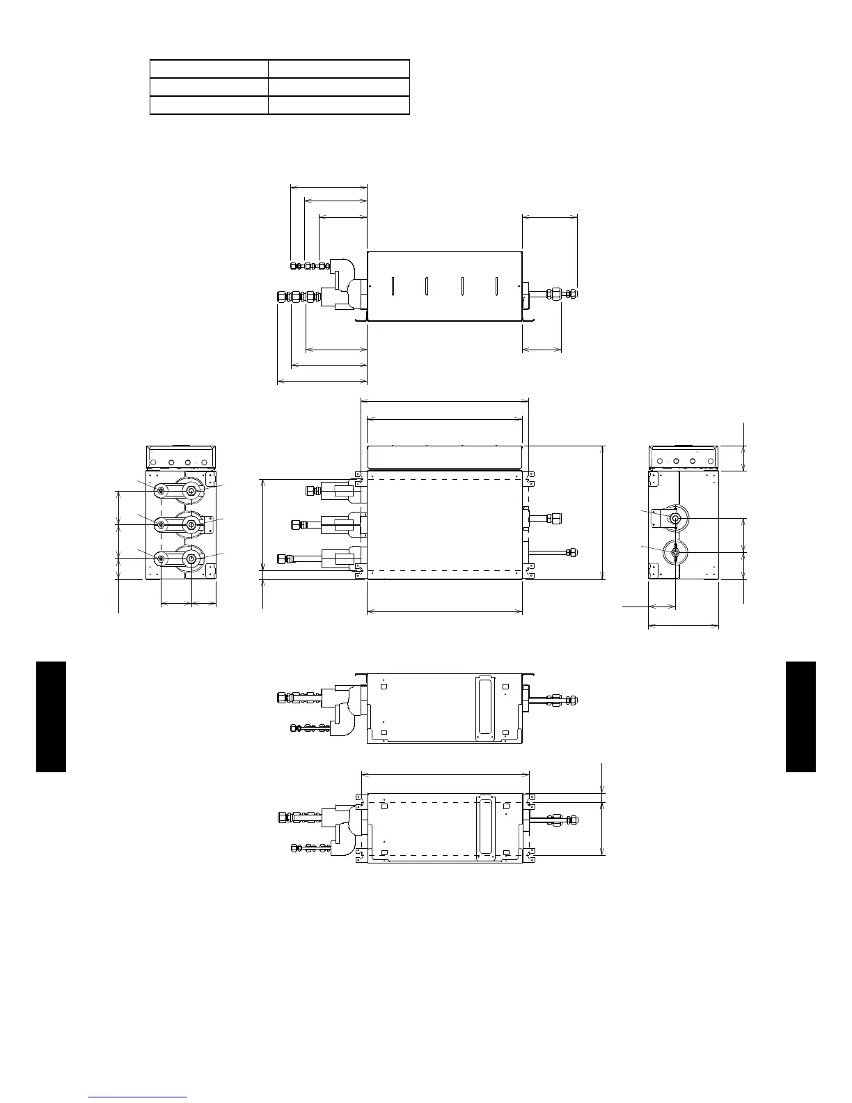
7. OPTIONAL PARTS
BRANCH BOX2.
Model Type
UTP-PY03A 3 branches
UTP-PY02A 2 branches
DIMENSION

214
469
469
432
433
75
195
85
68
95
256
372
148 25
75 70
95
95
57
24
174
154
110
134
216
256
176
Ceiling hangingIndoor unit side Outdoor unit side
Wall hanging
Unit : mm
[3 branches type]
- (07 - 02) -
OPTIONAL
PARTS
OPTIONAL
PARTS

Table of Contents

Related product manuals