EasyManua.ls Logo

Fujitsu ARHG09LLTA

Fujitsu ARHG09LLTA
413 pages
To Next Page IconTo Next Page
To Next Page IconTo Next Page
To Previous Page IconTo Previous Page
To Previous Page IconTo Previous Page
Loading...
6. SYSTEM DESIGN
INDOOR UNIT8-2.
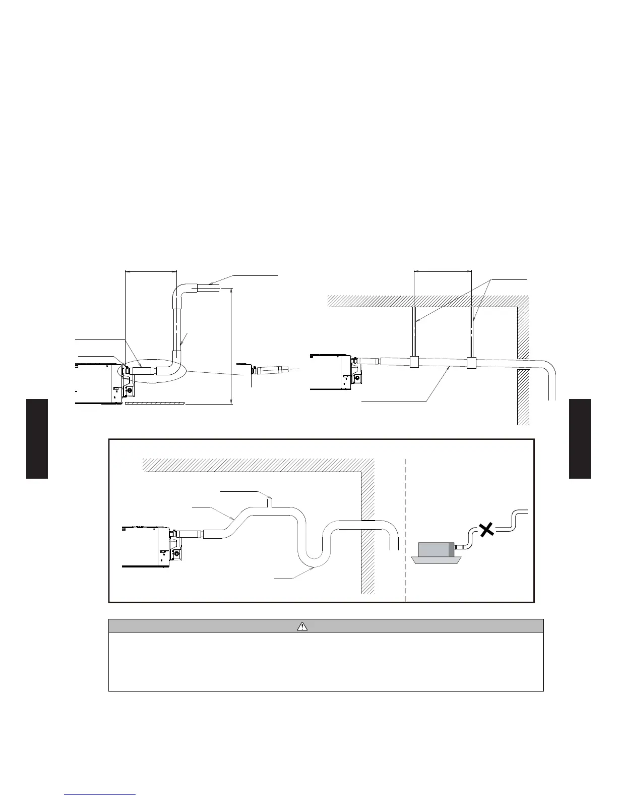
GENERAL RULES OF DRAIN PROCESS
Install the drain pipe with downward gradient (1/100 or more) and so there are no rises in the
pipe.
Use general hard polyvinyl chloride pipe and connect it with adhesive (polyvinyl chloride) so that
there is no leakage.
Support the drain pipe with supporters each 1.5 to 2.0m.
Do not perfrom air bleeding.
Always heat insulate the indoor side of the drain pipe.
When connecting the drain hose to the indoor unit, use the accessory band. (Except wall
mounted type)
COMPACT CASSETTE TYPE
VP25 (Local
arrangement)
300 or less
Max. 700
Attached band
drain hose
(accessory)
Downward
gradient 1/100
or more
Horizontal or
upward gradient
1.5 to 2.0m
Unit: mm
anging tting
Downward gradient
1/100 or more
Air bleeding
Rise
Trap
prohibited
CAUTION
Drain lift-up pipe restrictions:
 itup height   ro ceiing
 rain hose pipe ength   between indoor unit and itup pipe
When dimensions exceed the above restrictions, it will cause water leakage.
- (06 - 120) -
SYSTEM
DESIGN
SYSTEM
DESIGN

Table of Contents

Related product manuals