EasyManua.ls Logo

Fujitsu ARHG09LLTA

Fujitsu ARHG09LLTA
413 pages
To Next Page IconTo Next Page
To Next Page IconTo Next Page
To Previous Page IconTo Previous Page
To Previous Page IconTo Previous Page
Loading...
2. MODEL SELECTION
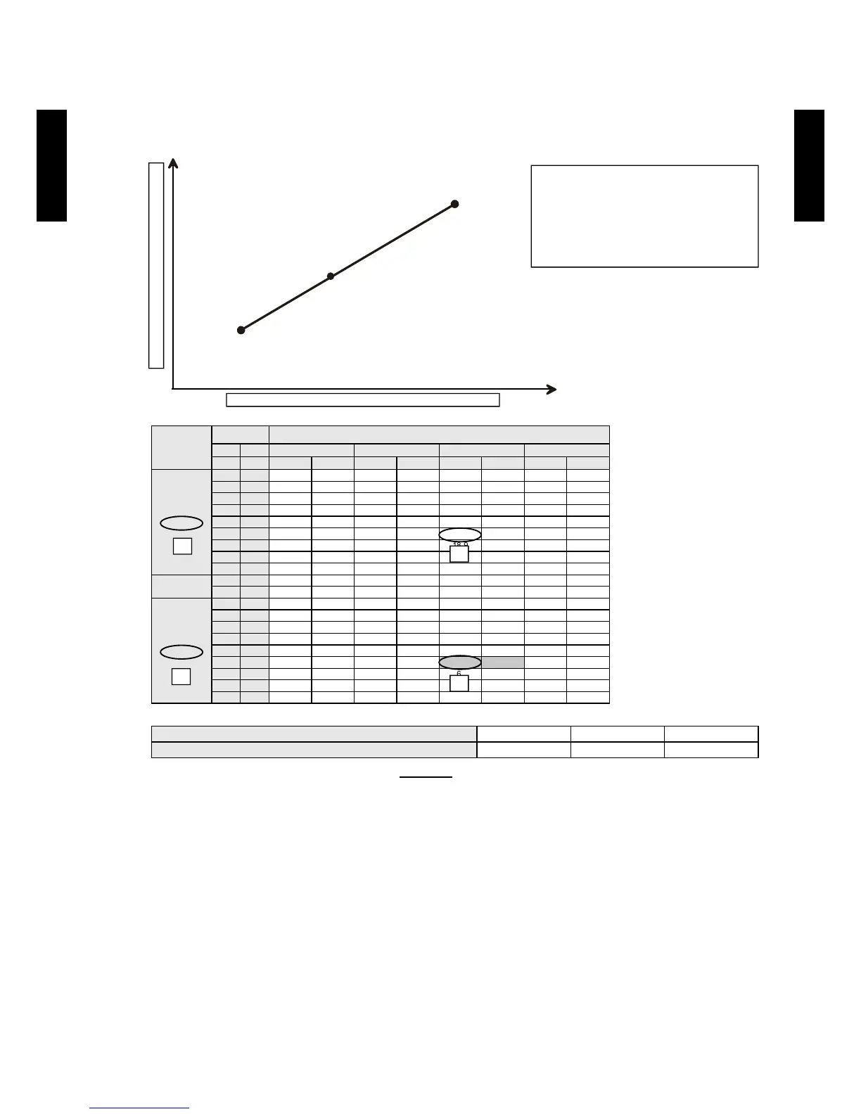
Fig 4
(X
1
, Y
1
)
(X
2
, Y
2
)
(X, Y)
x
y
i)   .    n 
1
and Y
2
using X
1
and X
2
.
ii) Calculate capacity of outdoor unit using
following equation:
Y=(Y
2
-Y
1
) / (X
2
-X
1
)
(X-X1) + Y
1
Capacity ratio of indoor units to outdoor unit, X (%)
Capacity of outdoor unit, Y (kW )
Indoor unit
connecting
capacity (%)
Outdoor
temperature
Indoor temperature
DB WB
16.0°C DB 18.0°C DB 20.0°C DB 24.0°C DB
°C °C
TC IP TC IP TC IP TC IP
120
-15.0 -16.0 11.4 5.57 11.0 5.58 10.6 5.60 10.2 5.62
-10.0 -11.0 14.5 5.62 14.3 5.64 14.0 5.66 13.7 5.68
-5.0 -7.0 15.6 5.71 15.4 5.74 15.1 5.77 14.9 5.79
0.0 -2.0 16.8 5.80 16.5 5.82 16.3 5.86 16.1 5.88
5.0 3.0 17.8 5.92 17.6 5.93 17.4 5.95 17.2 5.96
7.0 6.0 18.7 5.98 18.5 5.98 18.2 5.98 18.0 5.98
10.0 8.0 19.4 5.98 19.1 5.98 18.9 5.98 18.7 5.98
15.0 10.0 20.1 5.10 19.9 5.22 19.6 5.45 19.4 5.84
20.0 15.0 20.4 4.37 20.2 4.44 20.1 4.73 19.9 5.05

         
         
100
-15.0 -16.0 10.5 5.55 10.0 5.52 9.6 5.50 9.2 5.48
-10.0 -11.0 12.8 5.60 12.2 5.61 11.8 5.62 11.3 5.64
-5.0 -7.0 14.4 5.70 13.8 5.78 13.3 5.75 12.9 5.72
0.0 -2.0 15.7 5.76 15.1 5.78 14.5 5.74 13.8 5.68
5.0 3.0 17.0 5.76 16.2 5.61 15.0 5.23 14.0 4.92
7.0 6.0 18.5 5.70 17.4 5.35 16.0 5.07 14.5 4.55
10.0 8.0 18.6 5.56 17. 5 5.25 16.2 4.80 14.7 4.53
15.0 10.0 18.8 5.19 17.6 4.80 16.4 4.61 15.0 4.33
20.0 15.0 19.0 4.63 17.8 4.45 16.7 4.36 15.4 4.08
X
2
X
1
Y
2
Y
1
Capacity ratio of indoor units to outdoor unit X1 = 100 % X = 120 % X2 = 120 %
Capacity of outdoor units (kW) Y1 = 16.0 Y Y2 = 18.2
Y= (18.2-16.0) / (120-100)
(120-100) +16.0 = 18.2 (kW)
- (02 - 12) -
MODEL
SELECTION
MODEL
SELECTION

Table of Contents

Related product manuals